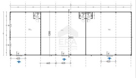
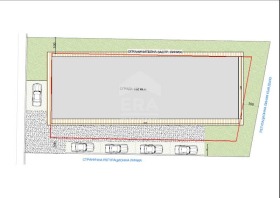
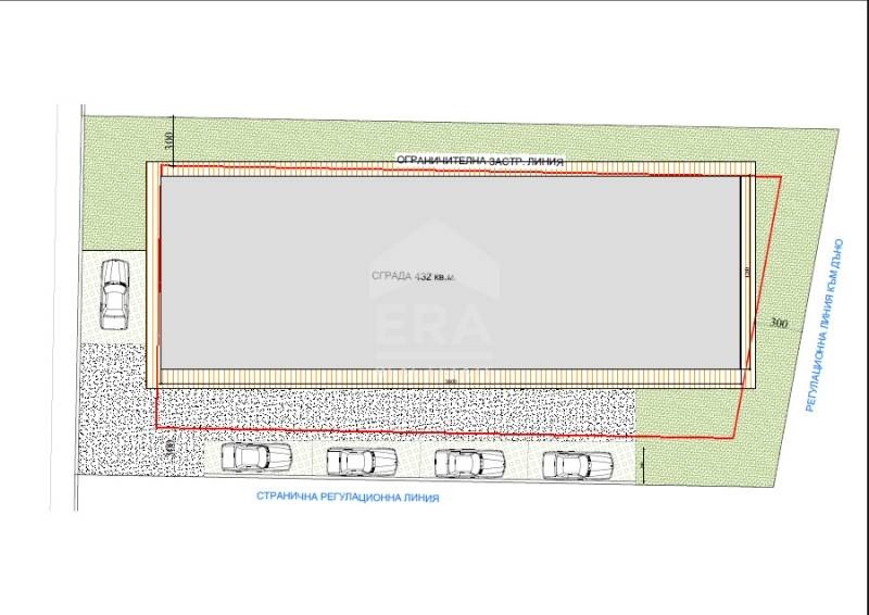
ЕРА Вива предлага под наем склад в Западната промишлена зона (ЗПЗ) на гр. Варна. Имотът е с правилна форма и е подходящ за логистична дейност, склад, хале, сервиз и други. Складът има разгърната застроена площ (РЗП) от 432 кв.м и се намира в парцел с площ от 1010 кв.м. Разполага с 5 паркоместа и голяма маневрена площ, а самият имот е разделен на три складови помещения, всяко със собствен санитарен възел.
Сградата и парцелът са с много добра локация, като в съседство са построени други складови помещения. Това осигурява удобен достъп и възможност за безпроблемна логистика и обслужване на бизнеса.
Западната промишлена зона на Варна е заключена между ул. Девня, бул. Владислав Варненчик и ул. Акад. Игор Курчатов и се простира до пределите на града. Районът граничи с ЖП-линия и Варненското езеро на юг, летище Варна на запад, кв. Трошево на север и Зеленчукова борса на изток. В ЗПЗ се намират представителства, фирмени магазини, производствени и складови бази на множество частни и държавни предприятия, както и чуждестранни фирми. Територията предлага паркинги, бензиностанции, автосервизи, хипермаркет Технополис, банки и др., като строителството е предимно нискоетажно и индустриално складове, производствени помещения, шоу-руми и административни сгради. ЕРА Вива предлага и безплатна консултация чрез партньорството си с лицензиран кредитен посредник КРЕДИТЕРА.
Оферта 1009761







