Сградата е в много добро общо състояние - удобна както за чисто производство, така и за складово-логистична дейност.
Сградата се състои от два етажа:
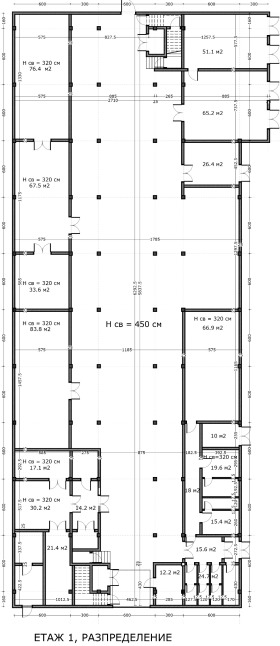
ПЪРВИ ЕТАЖ - 1540 кв.м. с височина около 4,50 м., разделено на работна зала, гараж s четири врати за товарни автомобили, една портална ролетна врата и два странични пешеходни входа, няколко по-малки работни помещения, отделение за служители /съблекални, санитарни възли, душове, трапезария/, два товарни асансьора за връзка с втория етаж с товароносимост до 1 тон.
Сградата е масивна с тухлени стени. Подовете са шлайфан бетон. Отоплението на първия етаж е чрез локално парно с котел.
Сградата е захранена с трифазен ток. Наличен трафопост с обща мощност 800 kw., от които около 400 kw. за тази сграда. Въздуховоди с цялостна работеща вентилационна система.
ПАРКИНГ с капацитет до около 15-20 автомобила и удобен достъп за товаро-разтоварна дейност.
Може да се наеме и цялата сграда, като ВТОРИЯТ ЕТАЖ е с площ от 760 кв.м., с височина около 3,20 м., състоящ се от много добре осветена работна зала с прозорци, два светли офиса /в двата края на етажа/ до стълбищните клетки и асансьорите. Товароносимостта на втория етаж е до половин тон. Отопление - колонни климатици.
Наемна цена: 4,50 Евро на кв.м. без ДДС.
Виж всички обяви в aiic.bazar.bg или тук







