Елина Ре Ви представя възможност за наемане на изключително функционално помещения подходящи както за складова, така и за производствена дейност.
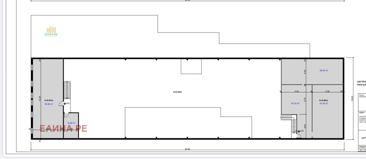
1.Складово промишлено помещение + офиси със застроена площ 961 кв.м. (към него има пристроени две помещения всяко с отделен вход с обща ЗП -314 кв.м.) и разгърната застроена площ 1409 кв.м. Общата площта на първия етаж e 1274 м2 - кота 0, височина на сградата 4.85 м, под шлайфан бетон. В двете ширини на помещението на втори етаж са разположени отляво 2 офиса (съответно 90,84 и 13,82 кв.м.) и три отдясно (47,53 кв.м., 58,65 кв.м., 61,45 кв.м.) с височина 2,05 м. Халето има два отделни входа. Трифазен ток. Разположено е в оградена охраняема зона с контрол на достъпа, голям портал, места за паркиране.
2.Складово промишлено помещение + офис със застроена площ 732 кв.м. (към него има и две самостоятелни помещения съответно 34 и 38 кв.м.) и разгърната застроена площ 917 кв.м. Площта на първия етаж e 732 м2, кота 0, височина на помещението 4.85 м, под шлайфан бетон. В двете ширини на помещението на втори етаж са разположени 4 офиса 25,89 кв.м.,12,46 кв.м., 24,08 кв.м. и 23,79 кв.м. с височина 2,05 м. Халето има два отделни входа. Трифазен ток. Разположено е в оградена охраняема зона с контрол на достъпа, голям портал, места за паркиране цена 2560 лева без ДДС.
Предлагаме под наем и други помещения подходящи за склад или производство.




