*Цената е без ДДС.
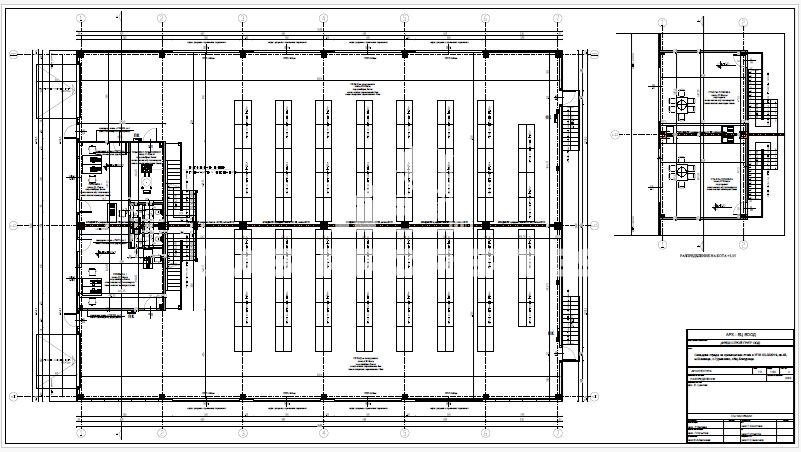
Агенция за недвижими имоти BAS Properties предлага под наем промишлено помещение (хале), разположено в с. Гурмазово, общ. Божурище, обл. София. Имотът е на стратегическа локация с директен достъп до главен път и възможност за тежкотоварен транспорт (TIR достъп).
Основни характеристики:
- Тип имот: Промишлено хале (половината от цялото хале)
- Площ: около 508 кв.м.
- Строителство: Метална конструкция, 2024 г.
- Височина на таваните: 8 м
- Електрозахранване: 15 kW
- Състояние: Напълно завършено, готово за експлоатация
Информация за имота:
Предлаганата под наем част представлява половината от новоизградено хале. Пространството е подходящо за логистична дейност, склад, малко производство или сервизна база.
Имотът е разположен на ключова индустриална локация, с лесен достъп до главни пътни артерии. Подходящ е както за български, така и за чуждестранни компании, търсещи надеждно и функционално складово или производствено пространство.
За повече информация и организиране на огледи, моля свържете се с нас!
Виж всички обяви в basproperties22.bazar.bg или тук
        
       
         
         
         
         
         
         
         
         
         
         
         
         
         
         
         
         
         
             
             
             
             
             
             
             
             
             
             
             
             
             
             
             
             
            


