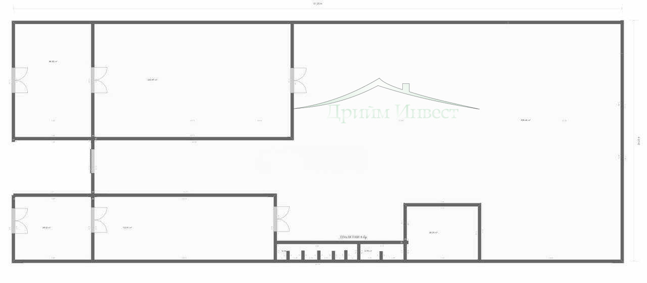
- Височина на таваните: до 8 метра;
- Трифазна електрическа мощност: 300kW;
- Осветление във всички помещения - множество осветителни индустриални тела.
- Изградена вентилационна система;
- Наличие на тоалетни и бани както и възмоност за съблекални.
- Собствен двор с ТИР Достъп и 3ТИР рампи
- Цялостно окабеляване и 3 силови табла.
- Тоалетни и бани
- Вода и канализация с възмосност за прекрояване.
- СОТ собствен вход
- Под - шлайфан бетон и мозайка в отлично състояние.
- Възмоност за наемане и на офис находящ се в същата сграда но на първи висок етаж с отделно стълбище.
- Местоположение - топ локация между два големи булеварда
Обектът предлага гъвкавост и може да бъде адаптиран за различни видове дейности - от магазин до склад, производствен цех, фабрика, шоурум за автомобили, склад строителни материали, склад мебели, спортен център, фитнес и много други. Помещенията предлагат опции за прекрояване и наемане на различни квадратури до 2400 кв.м.Разполагаме с Халета и Складови площи в Пловдив и региона от 50 до 5000кв.м. на разумни цени.Ние сме с над 15 годишен опит в областта на промишлените имоти.0885229943
Виж всички обяви в dream_invest.bazar.bg или тук
        
       
         
         
         
         
         
         
         
             
             
             
             
             
             
            






