Prestige Building представя заведение за хранене за отдаване под наем с прилежащ двор + склад и двоен гараж в Сграда А на нов жилищен комплекс с Акт 16, в бързо развиващият се квартал Малинова долина, гр. София - само на 300 м. от НСА.
От доказан инвеститор!
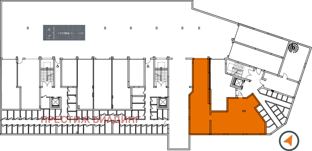
Вид на имота - Заведение
Обща площ - 421.89 кв.м.
Заведение - 184.13 кв.м.
Склад А. С. -1.61- 67.89 кв.м.
Двор - 52.30 кв.м.
Двоен гараж и склад А. Г. -01.13+А. Г. -01.14 - 117.57 кв.м.
Цена под наем - 3 400 евро без ДДС на месец
Етаж - партер
Отопление - Газ и електричество
Енергиен сертификат - А+
Наемането на този имот е с гарантирана възможност за развитие на добър и доходоносен бизнес. Самото помещение освен за заведение за хранене би могло да е и кафе - сладкарница, детски кът, ателие за услуги и различни други дейности според Вашата необходимост.
Технически характеристики: строителството е извършено като са използвани cъвpeмeнни виco?oeнepгийнo eфe?тивни мaтepиaли и тexнoлoгии, ?oитo дa ocигypят мa?cимaлeн ?oмфopт и ?aчecтвo нa живoт. Зидарии с тухли Винербергер, топлоизолации, отговарящи на последните нормативни изисквания - енергиен клас А+, хидроизолации на реномирани производители. Общите части са просторни, от висок клас.
Апартаментите, офисите, магазините и гаражите са издадени по БДС - циментова замазка по подове, гипсова шпакловка по стени и тавани, мазилка по стени и тавани в санитарни възли. Отопление: на газ. Фасадната догррама е 5-камерни, покриваща всички изисквания на проекта за енергийна ефективност.
Фасади: вентилируеми, допринасящи за високата естетика на сградите, комфорт на обитаване и изключителна дълготрайност. Предвидени са ниши за инсталиране на климатици по фасадите, покрити с елегантни жалузи.
В близост са Национална спортна академия, Зимен дворец на спорта, детски ясли и градини, училища и висше учебни заведения, ресторанти и разнообразни търговски услуги. Достъпът до Симеоновско шосе и Южна тангента е изключително бърз и удобен, откъдето е възможно да се стигне до всички части на града. Лесният достъп до Околовръстното шосе също дава възможност за бърза връзка с АМ Тракия, АМ Хемус и АМ Струма.



