ЕРА Голд има удоволствието да Ви представи под наем представителен търговски обект, разположен в широкия център на София в района на ул. Цар Симеон и ул. Св. св. Кирил и Методий , на пешеходно разстояние от метростанция Опълченска . Локацията осигурява отлична достъпност, постоянен човекопоток и бърза връзка с ключови градски артерии.
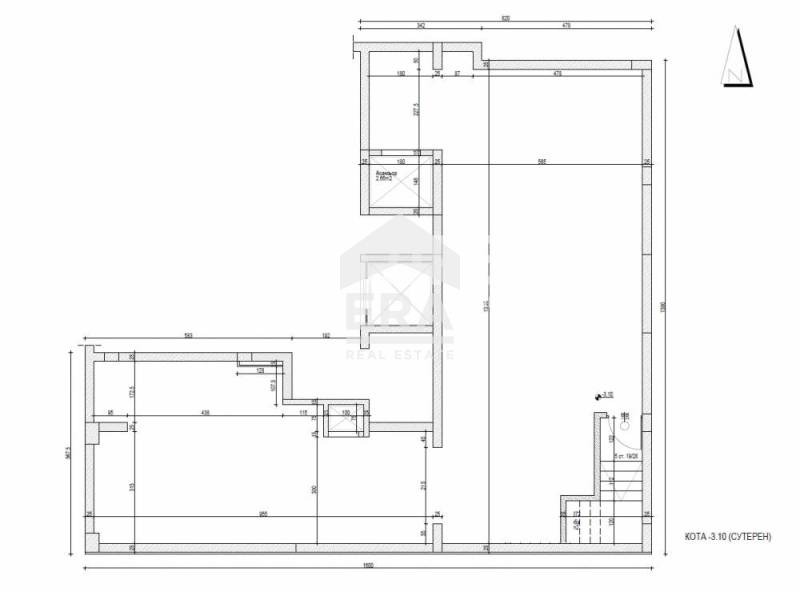
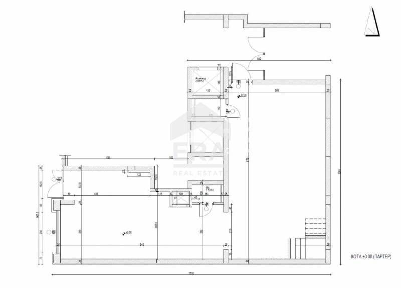
Общата площ на имота е 248,43 кв. м, функционално разпределени на две нива:
Партер 105.45 кв. м, с голяма витрина към улицата и два самостоятелни входа.
Сутерен 142.98 кв. м, отворени, просторни пространства с високи тавани и достъп до товарен асансьор.
Имотът разполага с два санитарни възела и предлага възможност за гъвкаво вътрешно преустройство според нуждите на бъдещия собственик.
Детайли:
- Просторно функционално разпределение с високи тавани на двете нива
- Представителна фасада, с витрина и лице към улицата
- Отопление на ток (монтирани климатици и бойлер)
- Два самостоятелни входа на партер и допълнителен осигурен достъп чрез товарен асансьор в сутерена
Имотът предлага отлична централна локация, подходящ за различни бизнес дейности магазин, офис, арт студио и галерия, зала за спорт и събития, естетичен салон и медицински център и много други.
CreditERA предоставя безплатна консултация и съдействие при финансиране на избрания от Вас имот от всички водещи банки в страната и ще договори най-добрите условия за вас!
Оферта 4062934







