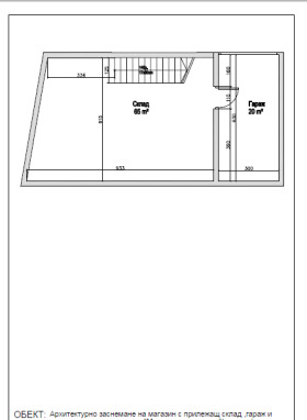
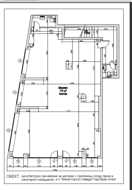
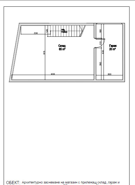
Предлагаме на вашето внимание магазин /офис 172 кв.м на партерно ниво с големи стъклени витрини и две тоалетни. Височина на тавана 3 м. Подземно ниво 60 кв.м с малки прозорчета и гараж който може да се ползва и за склад. Помещението е с два надземни входа и един подземен за гаража. Отопление на климатик и ТЕЦ.
Намира се на ул Тодор Каблешков срещу магазин Лидъл . Цена 3000 евро без ДДС с включени такси. Подходящо за различни видове дейности. 0882023955



