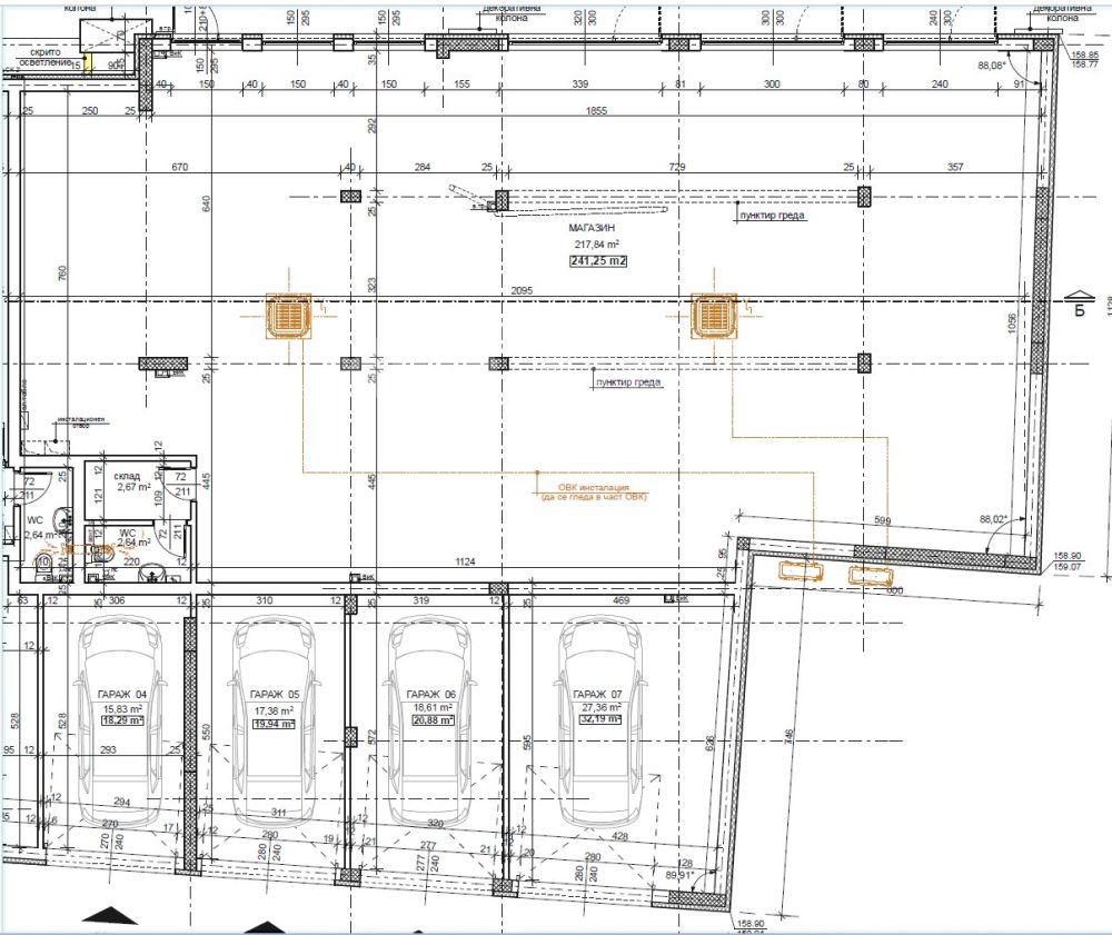
Представяме Ви магазин под наем на главен булевард. Има голяма витрина, с лице на булеварда, като пред него има и удобни места за паркиране. Изключително подходящ е за шоурум. Обединен е с гаражи 05, 06 и 07, като разпределение може да видите в прикачения файл. Общата квадратура на магазина с гаражите е 354,55 кв.м., от които 314,26 чиста площ.
Обади се сега и цитирай този код 685012







