MG Real Estate има удоволствието да Ви представи Медицински център, разположен на партер, със самостоятелен вход на ул. Маричини езера в кв. Дървеница.
С бърз достъп до основни булеварди (бул. Андрей Ляпчев , бул. Андрей Сахаров , бул. Климент Охридски ).
Разположен в нова-модерна жилищна сграда.
Локацията осигурява удобен достъп до градски транспорт:
Автобуси (88, 413)
Метростанция: Александър Малинов
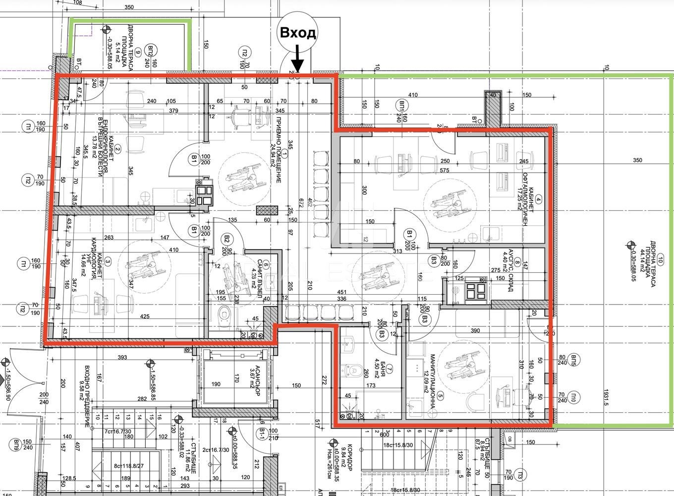
Разпределение: приемно помещение, четири самостоятелни кабинета, баня със санитарен възел, санитарен възел с достъп за хора в неравностойно положение, склад, две тераси.
Хидравлична платформа за достъп на хора в неравностойно положение.
Площ: 114.75кв.м
Категория: 4-та
Възможност за наемане на подземно паркомясто или гараж в сградата.
Виртуална разходка: https://my.matterport.com/show/?m=P6GqLC4VASP
За повече информация и огледи:
Сами Миланов - 0877/747 008.
--------------------------------
MG Real Estate is pleased to present a medical center located on the ground floor with a private entrance on Marichini Ezera Street in Darvenitsa district.
The property offers quick access to main boulevards such as Andrey Lyapchev Blvd., Andrey Sakharov Blvd., and Kliment Ohridski Blvd.
It is situated in a newly built modern residential building.
The location provides convenient access to public transport:
Bus lines: 88 and 413
Metro station: Aleksandar Malinov
Layout: reception area, four separate medical offices, bathroom with toilet, additional restroom with access for people with disabilities, storage room, and two terraces.
A hydraulic platform at the entrance ensures wheelchair access.
Total area: 114.75 sq.m
Category: IV
Option to rent an underground parking space or garage in the building.
360 tour: https://my.matterport.com/show/?m=P6GqLC4VASP
For more information and viewings:
Sami Milanov - 0877 747 008







