Реф Н 651
Предлагаме просторен обект с площ 174 кв.м., разположен на едно от най-динамичните и комуникативни места в София. Имотът е с чисто нова фасада и отлична локация, което го прави подходящ както за офис, представителство, салон за услуги, така и за магазин или шоурум.
Основни предимства
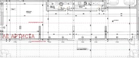
Функционално разпределение
4 паркоместа до обекта - /рядкост за района/
В момента е на шпакловка и замазка ще бъдат извършени довършителни работи според нуждите и профила на наемателя
Локация с интензивен автомобилен и пешеходен трафик
Отлична транспортна свързаност и бърз достъп до центъра и Околовръстния път
Възможност за гъвкави решения при ремонта и интериора, така че пространството да отговаря напълно на спецификата на Вашия бизнес.
Цената е без ДДС
Виж всички обяви в leartista.bazar.bg или тук







