Translations in other languages:
All real estate ads published on imot.bg have been translated into English and published on the partner site
Получихте нова обява по филтър





Промяна на цена на наблюдавана обява


стара цена
нова цена
imot.bg – обяви за продажби и наеми на имоти
Сайт за имоти №1
Translations in other languages:
All real estate ads published on imot.bg have been translated into English and published on the partner site
ДОБАВИ ОБЯВА Редакция на обява
Начало Публикуване Търсене Нови сгради Агенции Новини Кредити + Още... Моят имот
Дава под Наем МАГАЗИН
град София, Център
3 000 €
5 867.49 лв.

(6.25 €, 12.22 лв./m2)
Не се начислява ДДС
История на цената
Публикувана в 20:25 на 10 юли, 2025 год.
Обявата е посетена 364 пъти.
Площ:
480 m2
Етаж:
Партер от 3

Описание на имота:


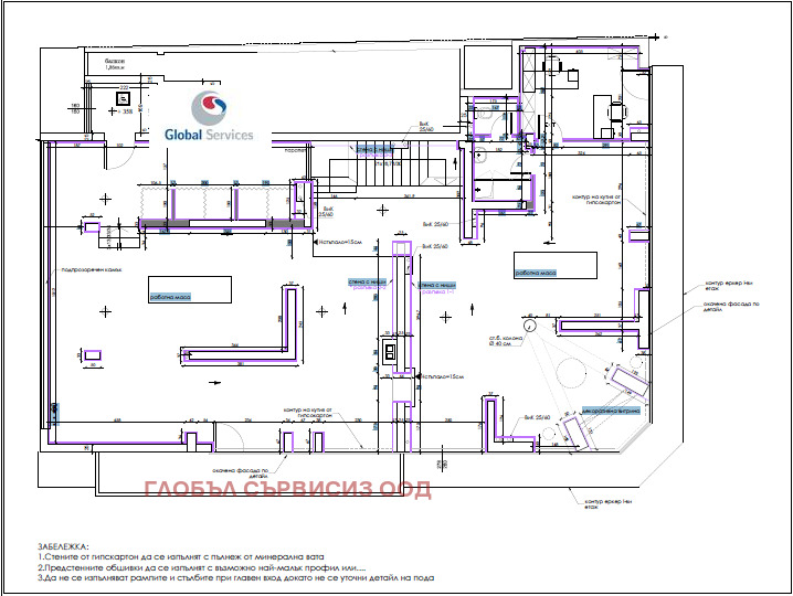
Магазинът се намира в сграда с разрешение за ползване от 2008г. Лицето е на бул.Дондуков и е с големи витрини. Разположен е на партер 121кв.м. и се състои от Рецепция, 3 помещение,2 санитарни възела и кухненски бокс. Първи етаж 286кв.м. и се състои от 2 големи работни помещения, 2 по-малки , санитарен възел и кухненски бокс. Достъпа до складовото помещение е чрез вътрешна стълба. Складовото помещение 76 кв.м се намира в сутерена . . Магазинът има самостоятелен вход към улицата и отделно вход към асансьора. Подходящ за ШОУРУМ, МАГАЗИН, БАНКОВ САЛОН, МЕДИЦИНСКИ ЦЕНТЪР, КЛИНИЧНА ЛАБОРАТОРИЯ и др. .Отопление ТЕЦ и климатици. . За оглед Мончев 0882 427 984. КЛЮЧ. Оферта 1013
Виж всички обяви в globalservices.bazar.bg или тук
За контакт:
0882427984
Брокер:
Михаил Мончев
0886067888
Офис: 02/9866668
Още оферти от брокера: Продава | Дава под наем | Купува | Наема
Агенция:
ГЛОБЪЛ СЪРВИСИЗ ООД
0888660255, 0886067888 ГЛОБЪЛ СЪРВИСИЗ
ГЛОБЪЛ СЪРВИСИЗ ООД logo
Медал за прослужено време
В imot.bg от 2004 г.
globalservices.imot.bg
Адрес:
област София, гр. София, УЛ. СОФИЙСКИ ГЕРОЙ 3Б, ЕТ.3
http://www.gsestates.eu
ИЗПРАТИ ЗАПИТВАНЕ
ИЗПРАТИ ЗАПИТВАНЕТО

Дава под Наем МАГАЗИН
град София, Център
Обява: 2m175216833512855

3 000 €
5 867.49 лв.
История на цената
(6.25 €, 12.22 лв./m2)

Не се начислява ДДС
ЗАПАЗИ ОБЯВАТА

Местоположение: град София, Център

Виж още наеми от София или още Магазини в София
Допълнителни данни за имотите в района и сравнение с други райони: Търсене в АРХИВ 2013 - 2025 г.











Добави/редактирай
вид имот и район
*Средните цени са определени чрез медиана стойност.
Още обяви в imot.bg
КОНТАКТИ | SMS КОДОВЕ | СТАТИСТИКА | ПОМОЩ | ОБЩИ УСЛОВИЯ | РЕКЛАМА | ТОП ОФЕРТА | Въпроси и предложения към imot.bg
Резон Медия | Имоти | Автомобили | Работа | Новини | Обяви | Преводи и легализация 2002-2025 ® Copyright imot.bg
© imot.bg ползва и препоръчва хостинг услугите на Bulinfo.net
Следвайте ни в: