🏢Модерни офис площи под наем в нова бутикова сграда до метростанция Дружба
УНИМОБ предлага под наем представителни и функционални офис пространства в новострояща се бутикова сграда със смесено предназначение, разположена непосредствено до един от изходите на метростанция Дружба в кв. Дружба 2.
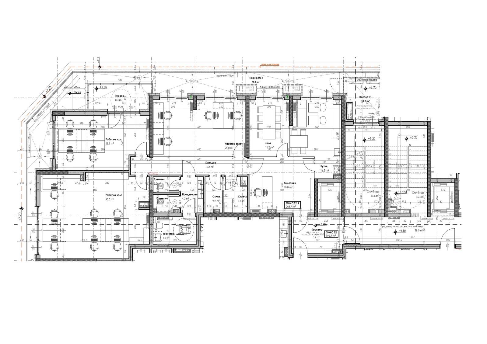
Офис площите, които се предлагат са със следните площи:
1. Офис 02-01 : 204 кв.м. /подходящ за 16-20 работни места/
2. Офис 02-02 : 182 кв.м. /подходящ за 12-15 работни места/
3. Офис 02: 396 кв.м. /вариант на обединение на офиси 02-01 и 02-02)
📍 Локация
Местоположението осигурява бърз достъп до центъра на София и удобна връзка с основни транспортни артерии бул. Професор Цветан Лазаров, бул. Кръстю Пастухов и ул. Капитан Димитър Списаревски, което прави имота отличен избор за представителен офис на вашия бизнес.
🏗️ Сграда и изпълнение
Сградата се отличава с модерна архитектура, висококачествени материали и функционални разпределения, проектирана и изпълнявана от водеща строително-инвестиционна компания с реализирани емблематични проекти в района.
Предвижда се завършване в началото на 2027 г., което предоставя възможност за индивидуални решения по разпределение и инсталации според в зависимост от изискванията на бъдещите наематели.
💼 Офис площи
Самостоятелен вход за офисните етажи
Гъвкави площи и възможност за адаптиране на вътрешното разпределение
Висок клас довършителни работи
Контролиран достъп и видеонаблюдение
🚗 Паркиране
На разположение ще бъдат надземен и подземен паркинг, с възможност за наемане на допълнителни гаражи или паркоместа.
📞 За повече информация и условия на наем може да се свържете с нас на телефон: 0889735683




