Офис с комфортно и функционално пространство на ул.Генерал Колев
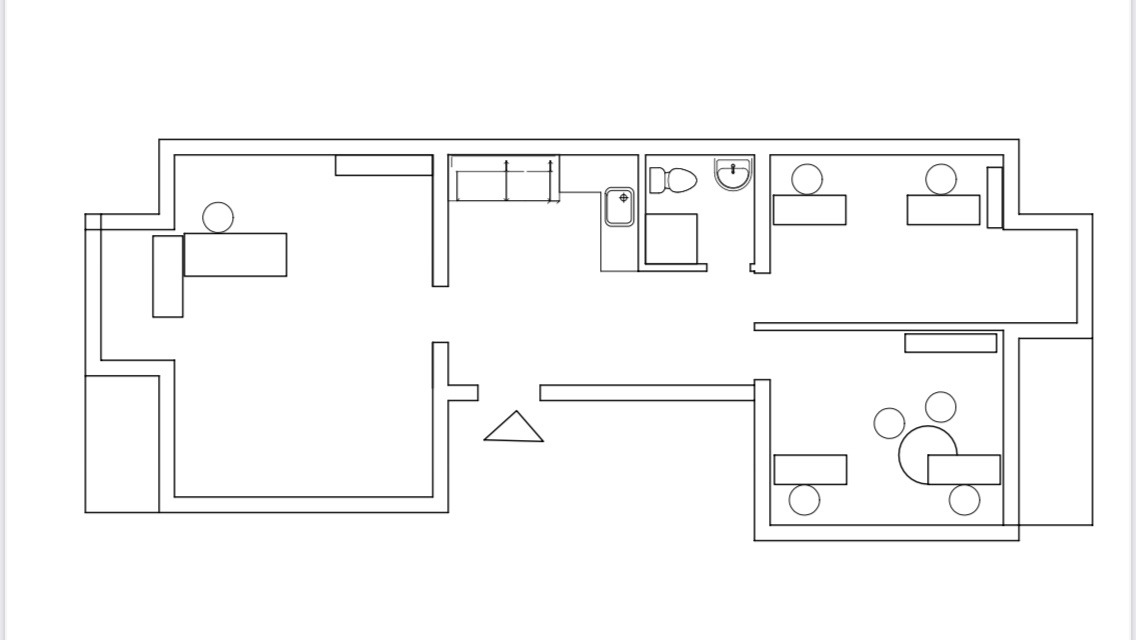
Три просторни и светли помещения, които позволяват различни интериорни решения и създават усещане за уют.
- Удобно разпределение с отделни зони за работа; балконът осигурява допълнителна светлина и въздух.
Обзаведен с обособен кухненски кът и приемна
- Поддържана обща част и сигурна сграда с асансьор; наличието на технически паспорт гарантира конструктивна обезпеченост и спокойствие за новия собственик.
Помещението е подходящо за адвокатска , счетоводна или друг вид дейност ,кантора, образователен център.
- Районът е с отлична комуникация и лесен достъп до централни булеварди и обществения транспорт, което прави ежедневието по-удобно.
За квартала:
- Окръжна болница е един от най-търсените райони във Варна с бърз достъп до здравни услуги, магазини, заведения и спирки на градски транспорт.
- В близост има зелени площи и образователни институции.



