Представяме Ви офис под наем в офисна сграда клас А с лице на главен булевард.
Сградата разполага с 24/7 охрана, видеонаблюдение и контролиран достъп.
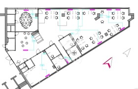
Разпределение: едно голямо Open space помещение, пет отделни работни кабинета, обособени със стъклени и гипсокартонени преградни стени, оборудвана кухня с трапезария и зала за почивка, представителна рецепция, сървърно помещение и четири санитарни възела. Офисът може да бъде преустроен изцяло като Open space или преграден според изискванията на наемателя.
Системи и инсталации: централна климатизация с индивидуални регулатори, вентилация с опресняване на въздуха, компютърно окабеляване кат.6, реализирано в подови кутии в двоен под, BMS система за управление на сградните инсталации, аварийно електрозахранване чрез дизел генератор и фиброоптична свързаност с няколко интернет доставчика.
Наемна цена: 12 EUR/кв.м. без ДДС
Такса поддръжка и охрана: 2.60 EUR/кв.м. без ДДС
Паркинг: подземен охраняем паркинг с множество свободни паркоместа, както и обществен паркинг и зона за свободно паркиране около сградата.
Транспорт и удобства: в непосредствена близост има спирки на трамвайни, автобусни и тролейбусни линии. В сградата и околността са налични заведения за хранене, ресторанти, банкови клонове, фитнес, парк, химическо чистене и супермаркети.
Офисът е реновиран и готов за нанасяне.
Обявените цени са без включен ДДС!
Код на офертата в агенцията: 15401
Работим с колеги по всички наши оферти.
За повече информация:
Имотифай ЕООД
0899 387 878



