Представяме Ви изключителен офис под наем с обща площ от 220 кв.м, който съчетава модерен интериор, функционално разпределение и перфектна локация. Разположен на партерен етаж в нова, стилна сграда със смесено предназначение и красиво озеленени площи, този офис е идеалното решение за вашия бизнес. Този офис е идеален за консултантски компании, финансови и инвестиционни фирми, архитектурни бюра, агенции за маркетинг и дизайн, както и IT start-up екипи.
Местоположение
Имотът се намира в непосредствена близост до ключовите транспортни артерии бул. България и Околовръстен път, осигуряващи бърз и удобен достъп както до центъра на града, така и до периферните райони.
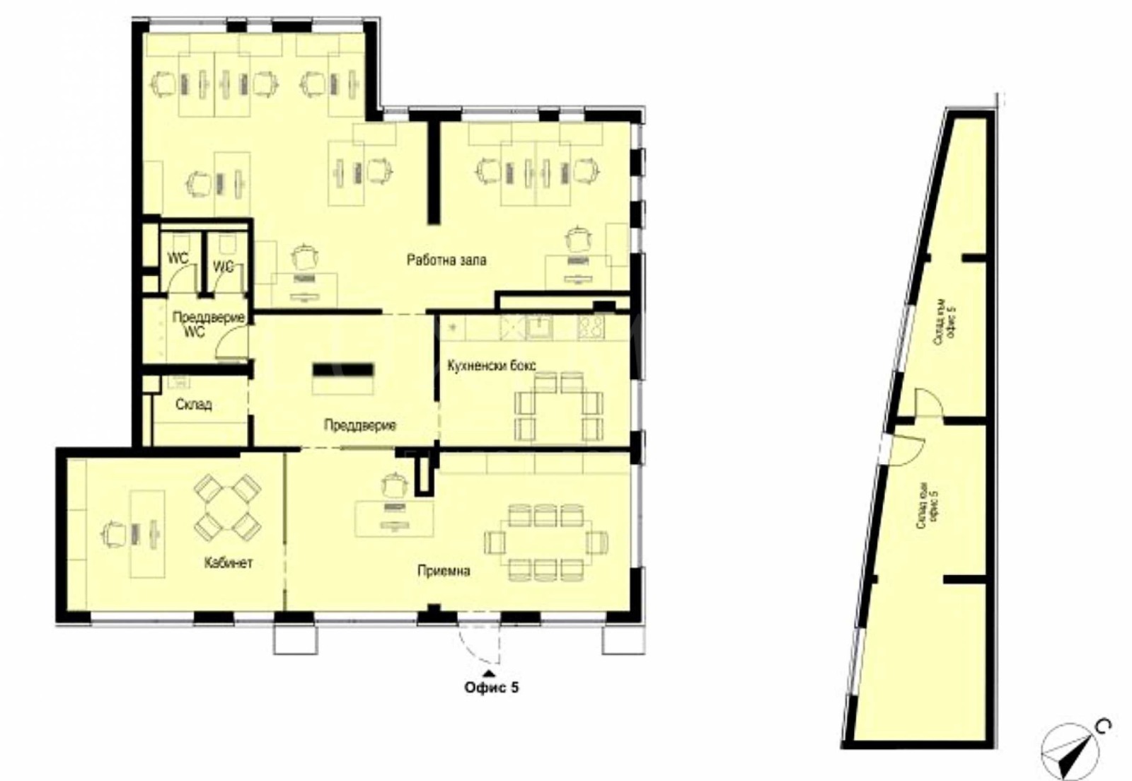
Този модерен офис с площ от 220 кв.м е интелигентно проектиран, за да отговори на всички нужди на съвременния бизнес:
Три отделни работни помещения за фокусирана продуктивност;
Просторен директорски кабинет идеален за ръководство и стратегическо планиране;
Високотехнологична заседателна зала за ефективни срещи и въздействащи презентации;
Просторна приемна, която впечатлява и създава отлично първо впечатление;
Напълно оборудвана кухня за удобство на персонала;
Два модерни санитарни възела;
Частна тераса оазис за почивка, неформални разговори и глътка свеж въздух.
Допълнителни предимства
Самостоятелен склад с площ от 33 кв.м дава възможност за съхранение на архиви и помощни материали на едно място
Оборудване и обзавеждане
Влезте в напълно обзаведено и оборудвано офис пространство с висок клас офис мебели, подбрани с грижа към детайла. Комфорт, стил и функционалност се обединяват в едно, за да вдъхновят креативност и резултати. Изпълнен с естествена светлина и завършен с първокласни материали, този офис излъчва елегантност и професионализъм.
Офисът се отдава под наем напълно обзаведен. Посочената цени е без ДДС! Имотът е собственост на ...
Цената на имота е 2 640 евро / 5 163.39 лв без ДДС или 3 168 евро / 6 196.07 лв. с ДДС.
За повече информация свържете се с нас и цитирайте референтния номер на имота. Моля, кажете, че сте видeли обявата в този сайт.
Референтен номер: SOF 131980
Тел: 0882 817 591, 02 425 69 52
Отговорен брокер:Лидия Вълкова
Виж всички обяви в luximmo.bazar.bg или тук







