Монтеканал предлага офис, разположен в сграда с денонощно видеонаблюдение и контрол на достъпа.
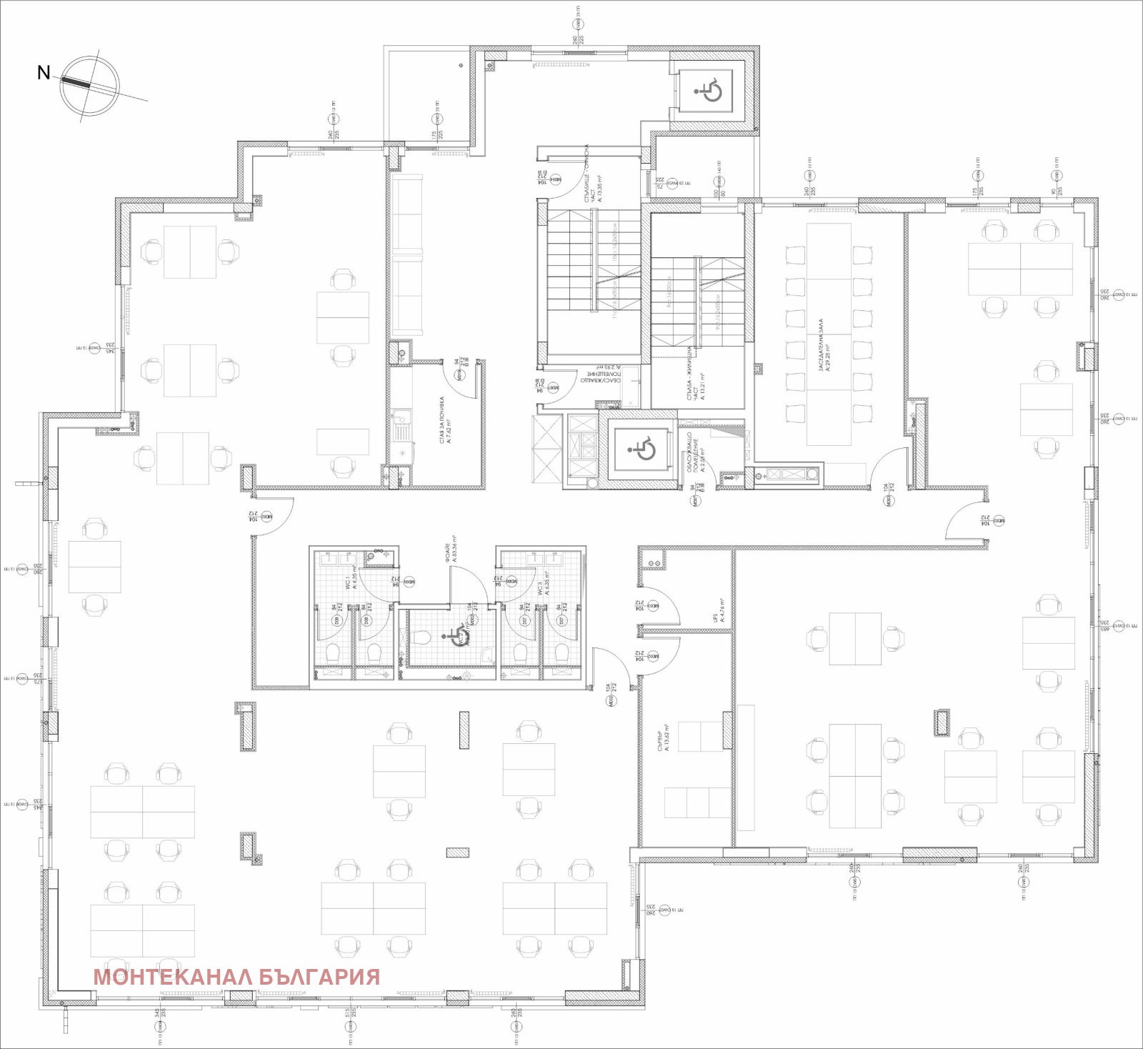
Два офисни етажа, тип open space, с възможност за гъвкаво вътрешно разпределение в зависимост от броя работни места и специфичните нужди на наемателя. Електро и интернет инсталация в подови кутии, реализирани в двоен под, възможност за окачен таван, светла височина на помещенията 2,75м.
Оптична свързаност на сградата. На всеки етаж има обособено сървърно и UPS помещение.
VRF система за отопление и охлаждане и отоплението е на ТЕЦ, с възможност за индивидуален зонов контрол. Вентилация с опресняване на въздуха. Изградени системи за пожарна безопасност. Асансьор Orona.
Всеки етаж разполага с обособена заседателна зала, кухня и зона за отдих, сервизно помещение, 5 броя санитарни възли, включително достъпен за хора с увреждания.
Офисите са изпълнени с окачена фасада, изолация минерална вата 12 см. Дограма с отваряемост по проект Etem E65.
Възможност за наемане на паркоместа в подземният гараж на сградата. Закрита паркинг зона за велосипеди. Сградата разполага с два броя зарядни стацнии в подземният гараж.
Спирки на няколко автобусни линии в непосредствена близост до сградата.
В непосредствена близост до парка, община Младост и 25то ДКЦ, на пешеходно разстояние от метрото (на мястото на предишният търговски център Кондор), в сграда със смесено предназначение, на приземният етаж на сградата са разположени сладкарница Неделя и аптека НОВЕ, от 4ти до 8ми етаж със самостоятелен вход е жилищната част на сградата.
Наемната цена от 14 евро без ДДС на квадратен метър плюс 3,50 евро такса за поддръжка без ДДС.В таксата за поддръжка са включени интернет, печатно услуги, контрол на достъпа и видеонаблюдение със СОТ реакция, почистване, застраховка общи части, разходите за електроенергия и вода.





