Имотът се състои от 1500кв.м.
С възможност за промяна на разпределението според нуждите на наемателя!
Локацията е в близост до:
- бул. Княз Ал. Дондуков
- метростанция 'Театрална' (на 2 минути пешеходно разстояние)
- автобусна спирка на линии 78, 79 и N3
- тролейбусна спирка на 1, 2, 4 и 3
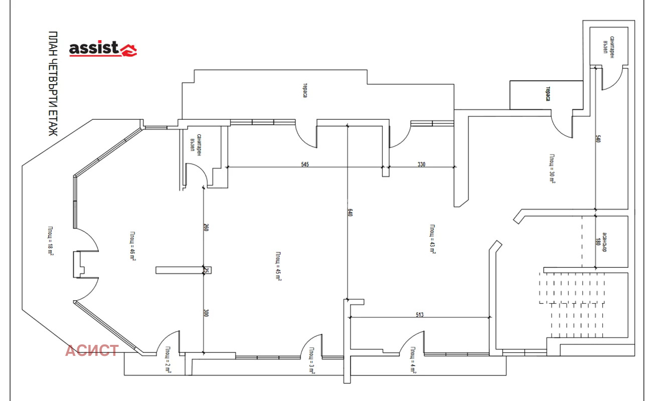
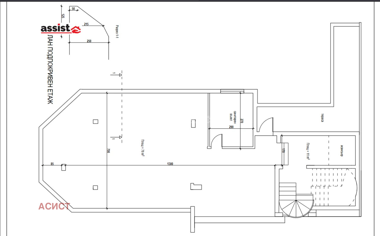
Разпределение:
- сутерен - 300кв.м.
- партер - 220кв.м., с големи витрини към ул. Тракия.
- етаж 1 - 200кв.м.
- етаж 2 и етаж 3 - по 250кв.м.
- етаж 4 - 230кв.м.
- етаж 5 - 50кв.м.
Офис сградата ще бъде завършена с материали от най-висок клас, напълно готова с настилки, латекс, окачени тавани и оборудвани санитарни помещения. Височина на тавани - 2,80м, напълно окабелена с оптичен интернет, централна климатична система с термопомпи.
В посочената наемна цена са включени 20 паркоместа!
Цената е без ДДС.
За повече информация или оглед се свържете с нас. Код за огледи: 57293.
Последвайте ни в социалните мрежи, където също може да разгледате нашите актуални предложения.
Facebook - https://www.facebook.com/AssistProperty
Instagram - https://instagram.com/assist.property?igshid=MTNkZmZnZjhoM3ZpMg==
Виж всички обяви в assist.bazar.bg или тук
        
      
        
        
        
        
        
        
        
        
        
        
        
        
        
        
        
        
        
            
            
            
            
            
            
            
            
            
            
            
            
            
            
            
            
            






