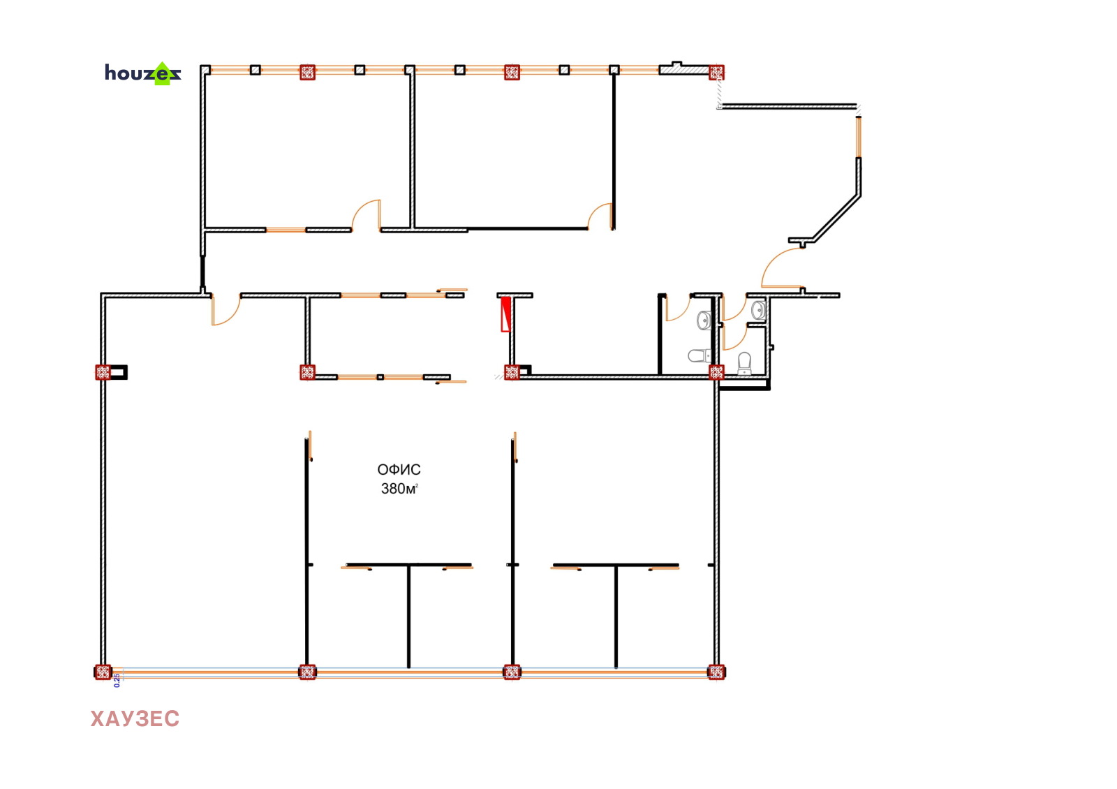
Имотът е разпределен както следва: рецепция,кът за отдих/кухня/, 6+1 кабинета, голяма и малка заседателни зали,open space работно пространство и два санитарни възела.Възможност за наемане на 2 паркоместа - 150 лв. месец, без ДДС. Такса поддръжка 1.5 е/м2 без ДДС, която включва охрана, почистване на общи части и ТБО.
За повече информация и огледи,моля свържете се с Диди Петрова на 0897560761.
Виж всички обяви в houzez.bazar.bg или тук







