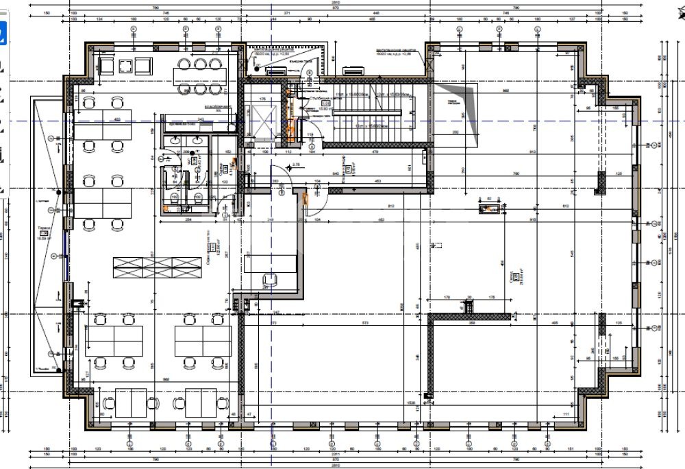
Подходящо за клиника , естетичен център , зъболекарска клиника и още много други възможности !Осеметажна сграда със смесена функция. Състои се от партерен етаж с магазини, 2 офисни етажа и 5 жилищни, по 5 апартамента на етаж. Носещата конструкция e монолитна стоманобетонна. Външните стени са от 25 см керамични тухли. Отвън ще се топлоизолират с 10 см каменна вата и финишно завършват като вентилируема фасадна система. Стените между апартаментите са от 25 см керамична тухла, а вътрешните в апартаментите са 12,5 см. Всички тухлени стени в жилищни и обслужващи помещения завършват с мазилка и шпакловка. Настилките в общите части, както и стъпалата, са предвидени да се изпълнят от плочи от технически камък. Парапетите на терасите са ажурни, стъклени, триплекс с матово стъкло, с метална ръкохватка. Външната дограма ще е алуминиева с прекъснат термомост и двоен стъклопакет, вътрешно стъкло триплекс в офисните етажи , външно стъкло четири сезона. Входните апартаментни врати са блиндирани, с пожароустойчивост EI60, звукоизолирани и с триточково заключване. Паркирането е решено с 49 бр. подземни паркоместа за автомобили от които 3 бр. за хора в неравностойно положение. Осигурени са и 57 бр. паркоместа за велосипеди. Сградата ще се обслужва от един асансьор за 9 лица. Ще свързва гаражите, партера, офисните и жилищните етажи.
Сградата се намира в гр. София, кв. Хладилника.
Сградата ще бъде завършена Октомври -2026г.
ТОП локация!
До МОЛ Парадайс!
До Метростанция Витоша!
На 5 мин. от зоопрака!
... Обади се сега и цитирай този код 628802







