For ENGLISH please call the number below.
Работим с колеги по всички наши оферти.
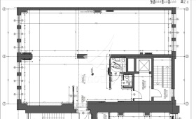
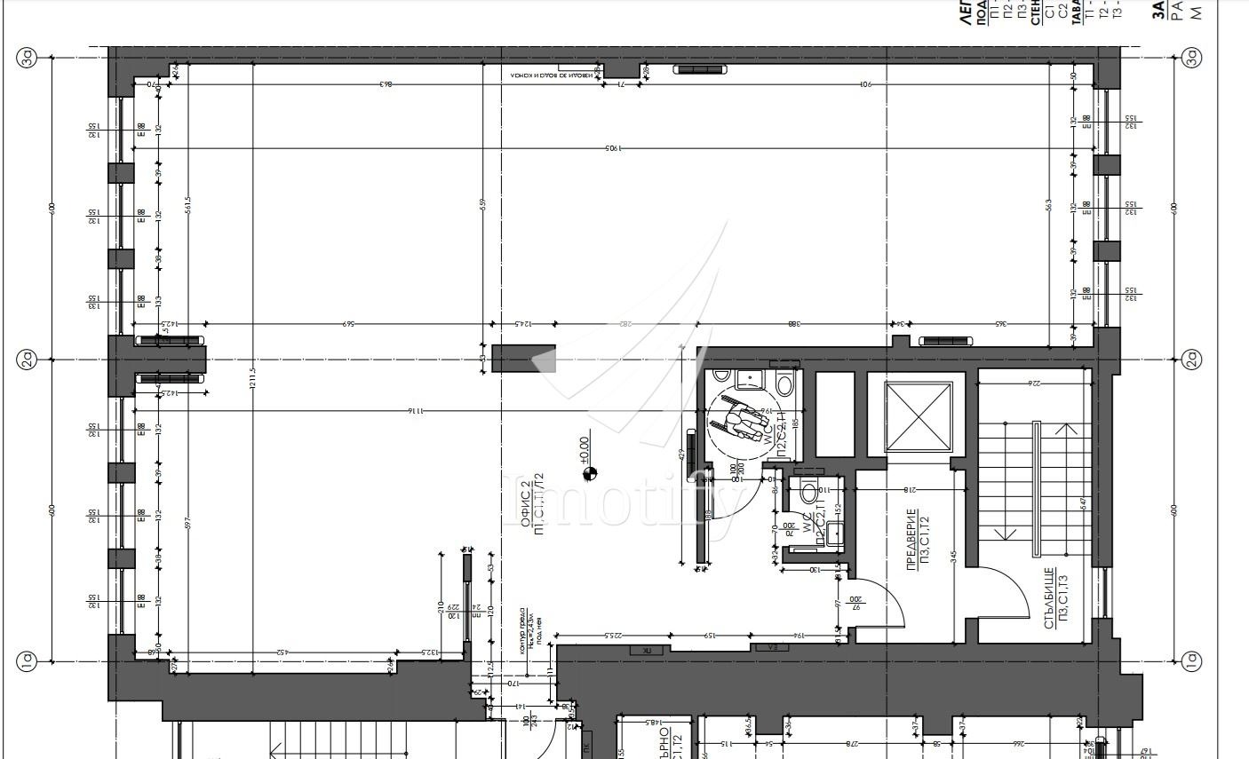
Представяме Ви модерен офис в бизнес сграда клас: 'А' на метри от МОЛ 'Paradise' и метростанция 'Витоша'.
Разпределение: Помещение тип 'open space', санитарно помещение, конферентна зала, кабинет, сървърно помещение и кухненски бокс.
Климатична система: Отоплението и охлаждането се осъществява посредством чилър системи.
Сигурност: Сградата е с денонощна 24/7 жива охрана и видео набюдение.
- Tакса обслужване в размер на 3 ЕUR за кв. м.
- Опция за наемане на паркоместа.
Обявените цени са без включен ДДС!
Референтен номер: 12601
Свържете се с нас относно други свободни офис площи в сградата.
За повече информация и сходни предложения: +#59899387878







