Офисите са на 3-ти и 4-ти етажи, опън спейс помещения, всяко от тях с площ около 100 кв.м, разполагащи със собствен санитарен възел и възможност за обособяване на кухненски кът. Към офисът има определено дворно място за паркиране. Възможност за инсталиране на сателитни системи на специална площадка на покрива. Помещенията се отдават и по отделно.
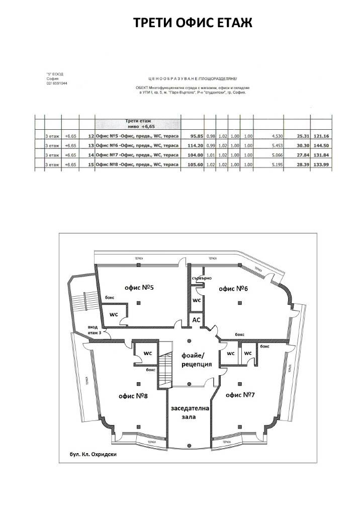
Офиси на етаж 3:
- 96 кв.м - офис 5;
- 114 кв.м - офис 6;
- 104 кв.м - офис 7.
На 3 етаж има и обособени площи за заседателна зала и фоайе/рецепция.
Офис/ателиета на етаж 4: (в площите са отчетени скосяванията)
- 83 кв.м - офис-ателие 1;
- 89 кв.м - офис-ателие 2;
- 100 кв.м - офис-ателие 3.
Кетъринг тераса с площ 242 кв.м (стълбище, предверие, бюфет, покривна тераса), достъп по стълбище или с асаньор.
Наем за офис площите: 5,50 евро/кв.м, няма такса обслужване.
Офисът има автоматично аварийно електрозахранване с практически неизчерпаем ресурс и свободен електрически капацитет от над 100 kW. Също така захранването е подсигурено откъм града и 'Околовръстен път'.
Наемодателят е гъвкав по отношение на преустройство на помещенията.
Офисът е подходящ за широка гама дейности, включително колцентрове, софтуерни компании, онлайн маркетинг, центрове за обучения, детски център и т.н.
Има възможност за обединяване на още площи в сградата.
В близост са бизнес парк Младост 4, Ринг Мол, ИКЕА.
Код на обявата: R0160522
Виж всички обяви в yourhome.bazar.bg или тук
        
       
         
         
         
         
         
         
         
         
         
         
         
         
         
         
         
         
             
             
             
             
             
             
             
             
             
             
             
             
             
             
             
            






