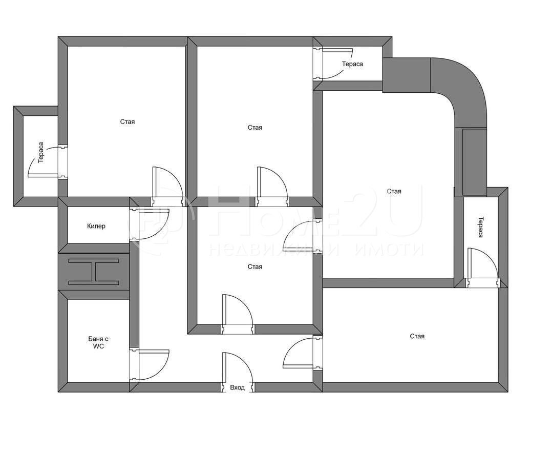
ХоумТуЮ има удоволствието да представи на Вашето внимание многостаен апартамент, находящ се на безкомпромисна локация, бул.Витоша 96 с гледка към НДК и планина Витоша. Имота се намира на втори надпартерен етаж в монолитна тухлена сграда от 1940г и има следното функционално разпределение: коридор, вестибюл (обособен като рецепция), три спални (стаи), хол (стая), кухненски кът, както и баня с тоалетна. Предвид локацията си, имота е подходящ за кантора или офис, но може и да се наеме за живеене в необзаведен състояние. Към имота могат да бъдат нанесени подобрения спрямо желанията на наемателя. За Ваше улеснение прилагаме схема на разпределение. Ако този имот представлява интерес за Вас, обадете се сега и цитирайте този код: 125645.
Виж всички обяви в home2u3.bazar.bg или тук
        
       
         
         
         
         
         
         
         
         
         
         
         
             
             
             
             
             
             
             
             
             
             
            






