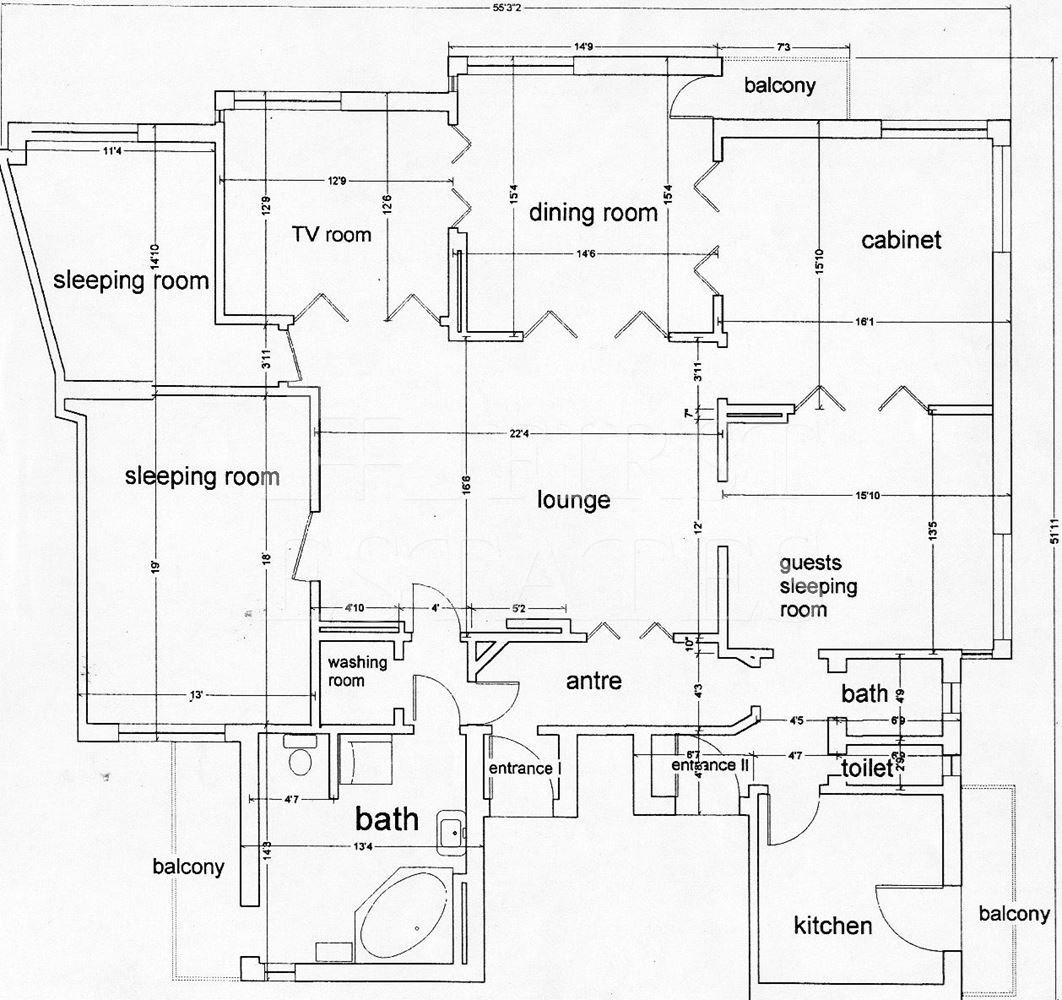
Разпределението е следното:
6 отделни работни помещения
антре
приемна
2 бани
2 тоалетни
2 тераси
Офисът е перфектен за развиващите се професионалисти, които търсят повече работно пространство, централа локация и истински аристократизъм на метри от всички институции и градски транспорт, които Столицата предлга.
Освен за офис, може да се използва и като апартамент за жилищни нужди.
Ако имате въпроси или искате да се докоснете до малкото такива останали офиси, се обадете, за да Ви го покажем !
За повече информация и организиране на оглед, моля свържете се с нас на телефон: 0 700 15 15 1 и цитирайте код на офертата: 2-11647
Виж всички обяви в first_estates.bazar.bg или тук
        
       
         
         
         
         
         
         
         
         
         
         
         
         
         
         
             
             
             
             
             
             
             
             
             
             
             
             
             
            






