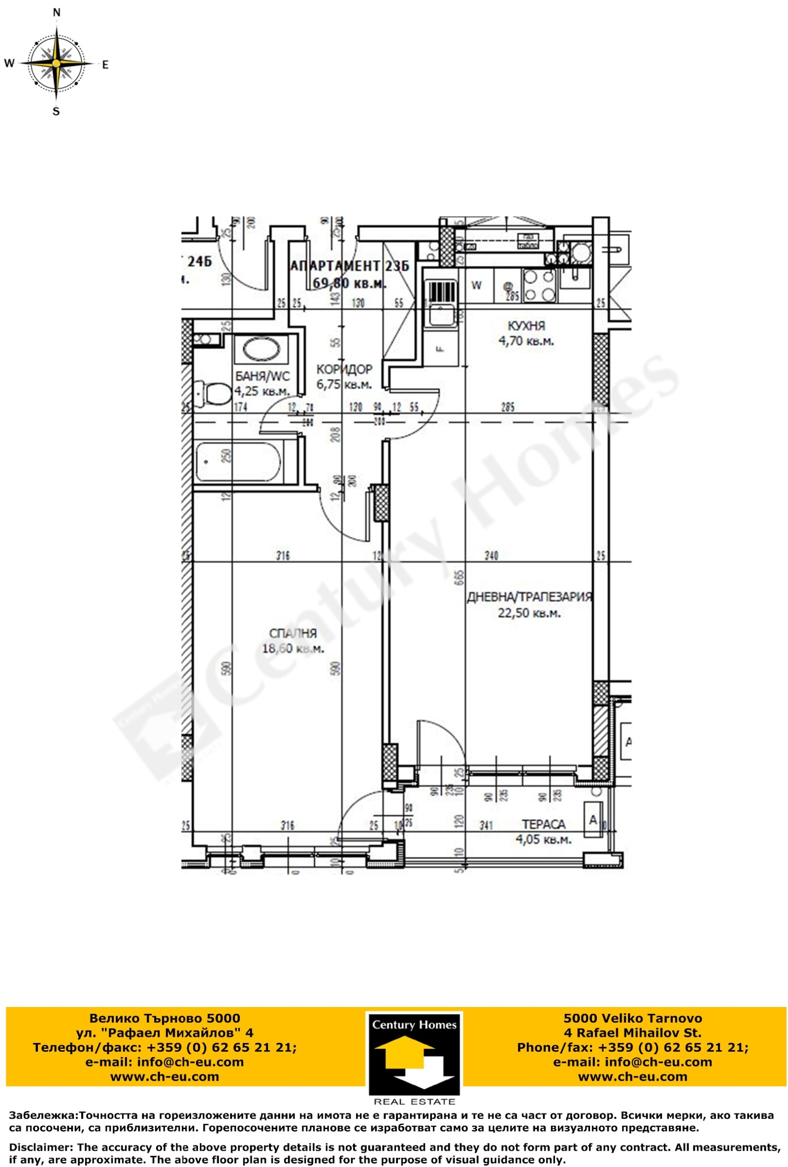
Напълно обзаведен апартамент с една спалня под наем в центъра на Велико Търново. Жилището разполага с площ от 69 кв. м., разпределени между една спалня, дневна с оборудвана кухня, баня/WC, тераса. Намира се на 3-ти междинен жилищен етаж от сграда ново строителство и има изцяло южно изложение.
Интериорът на апартамента е с подови настилки ламинат и теракот, стени на латекс, дограмата е PVC, MDF интериорни врати, има външна изолация. Апартаментът се предлага напълно обзаведен с всички ел. уреди - хладилник, готварска печка, пералня, телевизор и два климатика.
В близост са разположени , училища, магазини, парк и заведения, детски градини и има лесен достъп до всички удобства и институции на града.
Свободен от 1 Април 2026 г.
Реф. номер:103579







