Отдаваме под наем отличен и много практичен стилно обзаведен и напълно оборудван двустаен апартамент в емблематична сграда на Идея Билдинг в квартал Манастирски Ливади запад на Улица Професор Велизар Велков 4А. Сградата е наистина знакова за района в непосредствена близост до Болница Света София, бул. България, обръщалото на трамвай 7, много офиси, магазини, заведения и много други в квартал населяван от много млади хора.
Сградата е изключително добре организирана и поддържана. Има контролиран достъп и изглежда много добре. Има и отлични надземни и подземни гаражи и вътрешен двор. Към апартамента има възможност и за надземен гараж с отделна цена (не е задължителен за наемане).
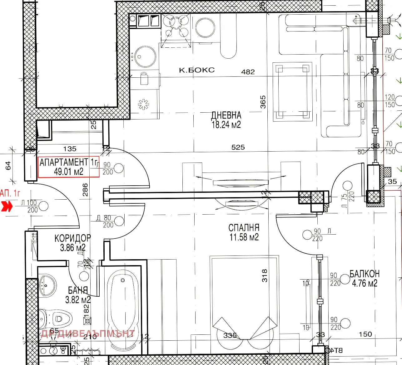
Апартаментът е обзаведен и оборудван от собственика за себе си като за лично обитаване - мислено е за детайлите. Състои се от входно антре, просторен хол с трапезарна част и кухненска част, тераса с излаз и от двете помещения, самостоятелна непреходна голяма спалня и баня с тоалетна в едно.
Хубав вътрешен апартамент на вътрешен етаж, което води до ниски консумативни разходи. Гаражът е много лесен за маневриране и е надземен. Разгледайте снимките. Имотът е качествен и си струва да се види. Ако имате въпроси, се свържете с нас на 0889 70 36 07.



