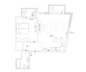
New Estates представя новообзаведен, дизайнерски апартамент в кв.Овча Купел , находящ се на бул. Президент Линкълн. Жилището се намира в нова кооперация на удобна локация на 100 м.от автобусни спирки и 500 м. от метростанция Мизия. Кооперацията е с акт 16 от 2023 година. Апартамента е оборудван изцяло с нова техника, обзаведен с вкус към детайла и има следното разпределение: входна част с директно влизане към всекидневна с прекрасен кът за почивка , кухня с високо ниво на оборудване, дизайнерска баня, просторна спалня, голяма тераса с прекрасен изглед към София. Кухнята е оборудвана с уреди MIELE. Спалнята е удобна с функционален гардероб, кът за съхранение и тераса. Изложението е юг - изток. Подходящ е както за семейство или млада двойка. Допълнително към апартамента се отдава паркомясто.





