Unique Estates представя на Вашето внимание самостоятелна офис сграда за продажба в кв. Гео Милев, разположена в непосредствена близост до посолства и чужди представителства.
Локацията се отличава с тиха и сигурна градска среда, характерна за административни и дипломатически зони, като същевременно осигурява бърз достъп до бул. Шипченски проход , ключови булеварди и централните части на София. Районът предлага отлична инфраструктура, добре организирана градска среда и престижен бизнес профил, което го прави предпочитан за представителни дейности и корпоративни офиси.
Сградата е изпълнена по съвременен архитектурен проект, в съответствие с европейските изисквания и стандарти за клас А. Конструкцията е колонен тип, което позволява гъвкаво преустройство и оптимизиране на вътрешните пространства според нуждите на бъдещия собственик. В момента разпределението е офисно, като има възможност за трансформация в жилищна или смесена функция.
Имотът е подходящ за развитие на адвокатска или нотариална кантора, търговско представителство, консулска дейност, медицински, дентален или спортен център, както и бутиков градски хотел.
Основни параметри на сградата:
Обща разгъната застроена площ - 704.90 m?
Обща разгъната надземна площ - 579.20 m?
Подземна площ - 125.70 m?
Зелена площ - 68.30 m
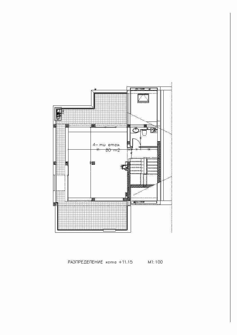
Разпределение по нива:
Сутерен -121.80 m?
Партер - 110.21 m
Етаж 1 - 127.78 m?
Етаж 2 - 127.78 m?
Етаж 3 - 127.90 m?
Етаж 4 - 95.47 m? Ref. ID:10756







