Имотът се простира на 12 000 квадратни метра терен в
местността Стари Астарджи, в.з. Касева чешма, град Русе.
Състои се от три сгради.
Сграда 1:
Промишлено-складова сграда с площ от 3000 кв.м, с
височина до 7.9 м., която е изградена от термо панели с
дебелина от 70 мм. на стените и 80 мм. на покривната част.
Складовите помещения са с промишлени секционни врати
HORMANN. Противопожарната система и врати е
съобразена с най-високите стандарти, като за целта е
изграден и противопожарен резервоар за вода с обем от
100 м.куб.. Също така е налична система с резервоар за
сгъстен въздух за работа на пневматични машини. За
отопление са изградени три самостоятелни системи -
чилър система със стенни колони /daikin/ 32 бр., газ и
локално парно на твърдо гориво. В задната част на
сградата е разположено сервизно помещение с възможност
за техническо обслужване на леки и тежки автомобили.
Сграда 2:
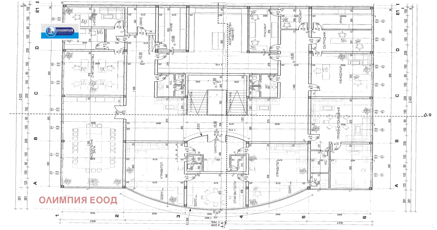
Административна сграда на два етажа с обща площ от
1500 кв.м.
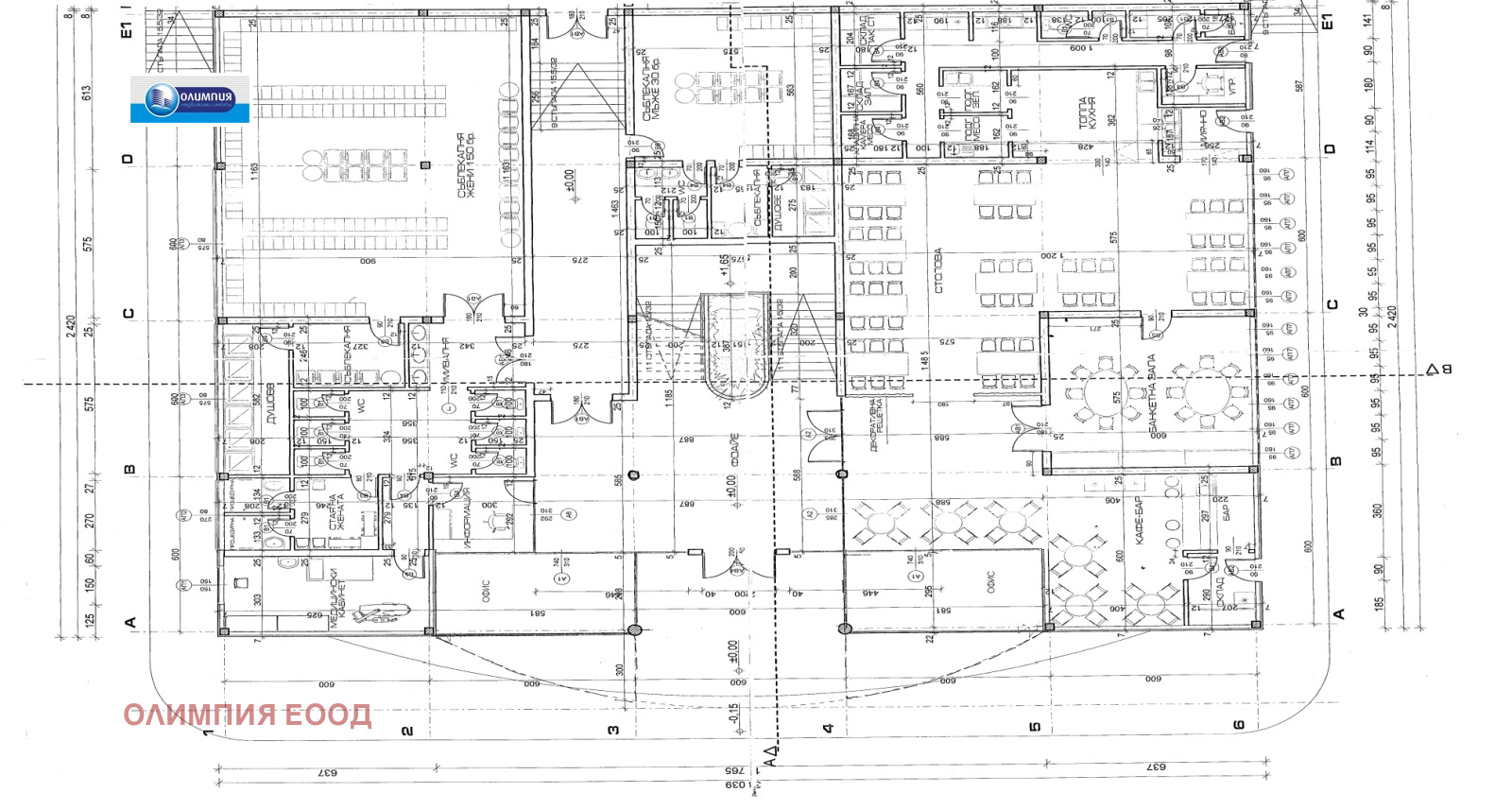
На етаж Едно са разположени пет офиса; кухня
със две зали за хранене; кафе-бар; множество санитарни
помещения; две съблекални. Същите разполагат с пълно
оборудване за нормалното им функциониране.
На етаж Две са разположени също дванадесет
офиса, зали за заседаване, за гости и приемни, санитарни
помещения и два апартамента, с по две стаи и
самостоятелни санитарни помещения към тях.
Сграда 3:
Тя е изградена от еталбонт и окачена фасада с
площ от 27 м. кв. представляваща контролнопропускателен пункт за денонощна охрана. В същата е
изградено сервизно и санитарно помещение и е
оборудвана с всичко необходимо за предназначението
си.
В имота е изграден трафопост с предоставена
мощност от 900 кW., която е съобразена с
изпълнението на проект за фотоволтаична централа от
600 кW, с възможност с увеличение на капацитета.
Същата е вече с одобрен проект и договор с
електроразпределителното дружество.







