458305 Агенция Мирела продава търговски център с площ над 3000 кв. м, в нов жилищен комплекс в кв. Галата.
ТОП ИНВЕСТИЦИЯ С ВИСОКА ВЪЗВРАЩАЕМОСТ.
ОСИГУРЯВАМЕ НАЙ-ДОБРИТЕ УСЛОВИЯ ЗА ПРОДАЖБА, СЛЕД ИНДИВИДУАЛНА КОНСУЛТАЦИЯ И ПРЕЗЕНТАЦИЯ НА ОБЕКТА.
Жилищния комплекс гарантира над 170 жилищни обекта, осигуряващи постоянен клиентски поток.
Районът е новозаселващ се и изпитва голяма липса на основни услуги, което превръща този обект в ключов център с висока доходност.
Търговският комплекс има лице към основната пътна артерия в квартала.
Разполага с над 1000 кв. м подземен паркинг и над 30 надземни паркоместа.
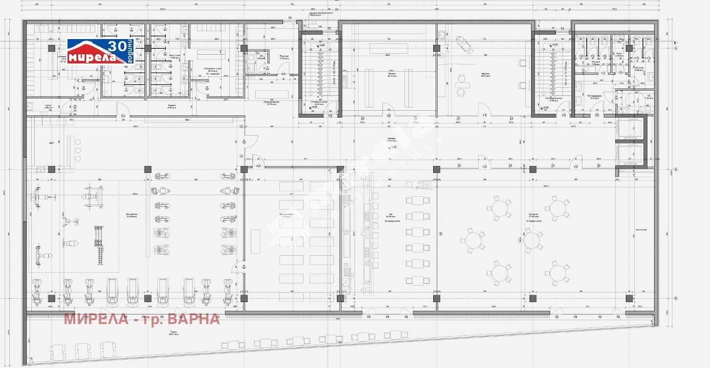
* СУТЕРЕН ЕТАЖ с паркоместа и складове - 1087 м2;
* ЕТАЖ 1, включва: Магазин (супермаркет) 979 м2; Аптека 34 м2; Химическо чистене 7 м2;
* ЕТАЖ 2 включва: фризьор 54 м2; Магазин 54м2; Ресторан с тераса 398 м2; Фитнес 602 м2
_Свържете се с нас за повече информация информация, презентация и условия за покупка._
ЕТАП НА СТРОИТЕЛСТВО: завършен груб строеж (Акт 14); ОТОПЛЕНИЕ: термопомпа въздух-вода; ВИД СТРОИТЕЛСТВО: тухла; ЗАСТРОЕНА ПЛОЩ 1 087 кв.м; ПУСКОВ СРОК: 12.2026; ДОГРАМА: PVC
_________________________________________________________________________________________________
Към потенциалните продавачи!
Ако продавате подобен имот или обмисляте дали да го направите в близко бъдеще, моля свържете се с мен. Имам клиенти, които търсят в района. Мога да дам ориентировъчна цена по телефон или имейл и по-точна цена при оглед на място.
ОГЛЕДЪТ И КОНСУЛТАЦИЯТА СА БЕЗПЛАТНИ.
МОЖЕТЕ СЪЩО ТАКА, ДА ПОДАДЕТЕ И БЕЗПЛАТНА ЧАСТНА ОБЯВА ЗА ПРОДАЖБА НА ВАШИЯ ИМОТ В MIRELA.BG, БЕЗ БРОКЕР И КОМИСИОНА.







