ТОП МЯСТО: на пл. Преображение, до ул. Цар Симеон и Метростанция Вардар . СГРАДА с АКТ 16 от 2019 г. със РЗП; 1238 кв.м. Състои се от: ЕДИН СУТЕРЕНЕН ЕТАЖ (кота -3,45 м.) и ЧЕТИРИ ЕТАЖА (до кота + 9,45) над кота терен и са със следните разпределения:
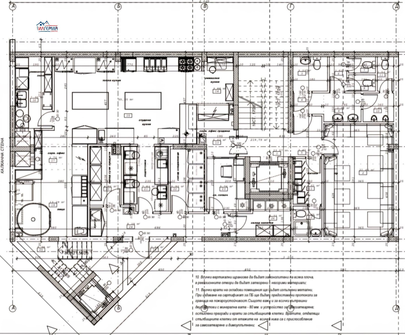
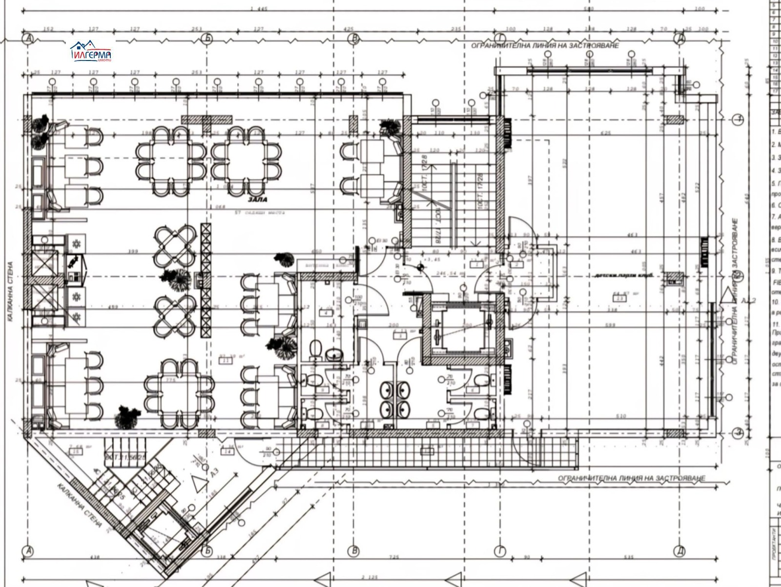
На Сутерен, Партер и Етаж 1: Разположено е луксозно заведение/бар и ресторант със зимна градина и отделни зали за събития.
Етаж 2 и Етаж 3: Офис площи.
Последен етаж: Две ателиета, които в момента се ползват като офиси.
ТЕХНИЧЕСКИ ХАРАКТЕРИСТИКИ:
Сградата е изпълнена с висок клас материали и разполага с всички съвременни системи:
10 см. външна изолация
Климатизация и вентилация за всички нива.
Два асансьора (Общ и Товарен/Обслужващ). Както и са налични Специализирани Кухненски Асансьори (за чиста и мръсна посуда) между кухнята и двата етажа на заведението.
Сигурност: Видеонаблюдение и СОТ.
Свързаност: Окабеляване и оптичен интернет.
Допълнително: Външни електрически щори.
Ресторант (Сутерен, Партер, Етаж 1) (721 кв.м. РЗП)
Заведението е напълно обзаведено и оборудвано с всичко необходимо за извършване на дейността. Кухнята е просторна и модерно оборудвана.
Капацитет: 150 места.
Разширение: Възможност за още 118 места в лятна градина.
Екстри за Събития: За осигуряване на допълнителен комфорт на клиентите, към него има ВИП зала и детски клуб. Заведението е изключително подходящо за всякакви фирмени и семейни тържества.
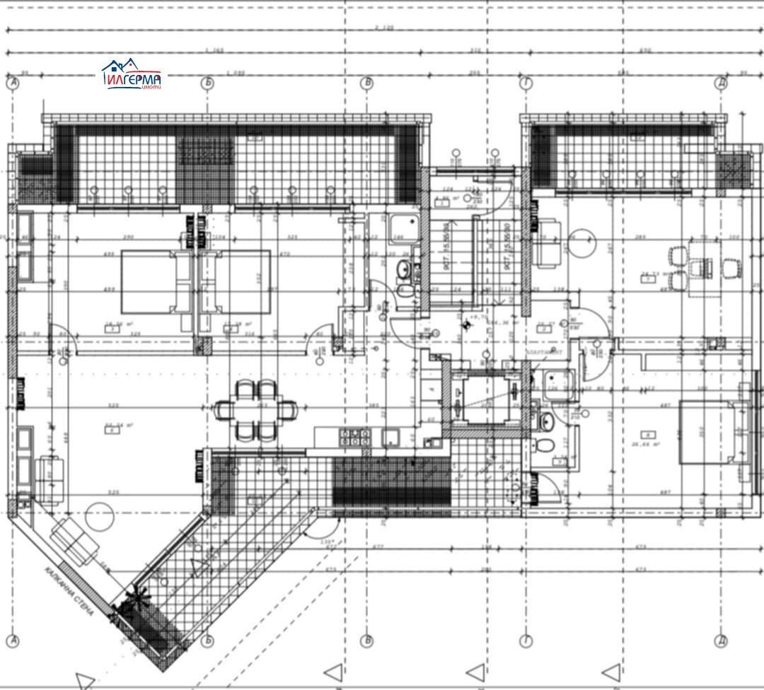
Офис Площи (Етаж 2 и Етаж 3)
Офисната част е необзаведена, което дава възможност за преустройства, според изискванията и нуждите на ползвателя:
Етаж 2 (259.13 кв.м.): Обособени са пет работни помещения с различна квадратура, кухненски бокс, два санитарни възела и тераса.
Етаж 3 (257.88 кв.м.): Пет помещения, приемна с кухненски бокс, три тераси и два санитарни възела.
Ателиета: На последния етаж има две ателиета, които също се ползват като офиси.
Сградата се отличава с изключително добра локация и комуникации, всякакъв транспорт, включително метро на 3-5 минути пеша. Бърз достъп до центъра и всички точки на града. В близост са Национална кардиологична болница, няколко училища и детски градини, както и парк.
Паркиране: Зона със свободно паркиране.
За повече информация и други предложения - Владимир Владимиров 0886/19 19 88, 0894/780 - 129 или на нашия сайт www.ilgermaimoti.com







