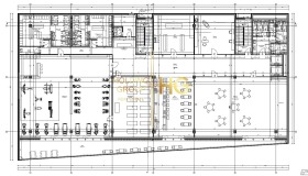
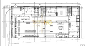
Дриймвил предлага за продажба търговско помещение със статут на Фитнес център, намиращ се в комплекс Panorama Dreams, град Свети Влас.
Помещението е разположено на партерен етаж. Oбща площ 274 кв.м.
Panorama Dreams e разположен в град Свети Влас, на 100 метра от морския бряг. Районът е с отлична пътна инфраструктура и комуникации, а локацията на комплекса дава възможност за бърз и удобен достъп, както до курорта с неговите места за забавление и търговски обекти, така и до красивото яхтено пристанищe.
Районът е изключително предпочитан за целогодишно живеене!
Ваканционен комплекс Panorama Dreams събира в едно уютен дом, чудесно местоположение, разнообразие от удобства, възможности за спорт, забавления и релакс. Трите отделни сгради обгръщат преливащите един в друг басейни и предоставят красива панорамна гледка към залива на Слънчев Бряг и Стария град на Несебър.
Помещението се продава без комисионна, директно от инвеститора!



