Цената е без ДДС!
Предлагаме на Вашето внимание БИЗНЕС ИМОТ - сграда за търговия със склад - в един от най-бързо развиващите се промишлени райони в страната - гр. Божурище, на  бул. Европейски път, Софийска област. Имотът е представителен, с вход/ изход на голям булевард и е подходящ за шоурум, склад както и различни видове търговска / складова и производствена дейност.
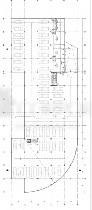
УПИ на парцела е 4 974 кв.м, със собствен локален път и  с 25 външни паркоместа.
Сградата е с площ по нотариален акт от 3 880 кв.м., със собствен трафопост.
Височина на таваните на сградата:
Височина гараж: 3.50м.
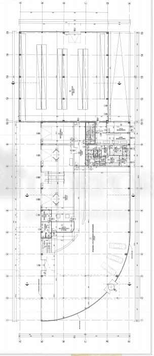
Височина етаж 1: 5.50м
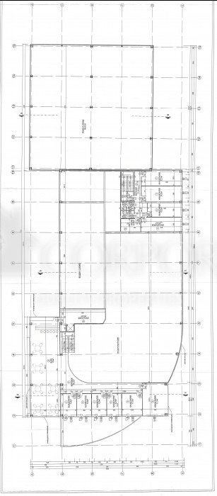
Височина етаж 2 - офиси: 3.20 м
Настилки в сградата:
Шоурум ет.1 - теракот
Склад ет.1 - шлайфан бетон
Офиси: теракот / шлайфан бетон
Разпределение на сградата: Ниво -1 с площ от 1770кв.м включващо подземни паркоместа, стълбище, котелно, вентилационни помещения, работно помещение; Първи етаж с площ от 1700 м2, от които Шоурум 700м2, склад 600м2   сервизни помещения, офиси, битов кът с бани и тоалетни, приемна; Втори етаж   заседателна зала, кафене, офиси с обща площ на етажа около 400м2. Двата етажа са с обща площ от 2 100 кв.м и помещенията могат да бъдат пригодени според нуждите на бъдещите ползватели.
Работим с колеги по всички наши оферти! Агенцията ни предлага преференциални условия за отпускане на ипотечен кредит и пълно юридическо съдействие. Удобно е да се обаждате по всяко време! Водещ брокер - Ирина Джанева   0887 219 224. Оферта номер:908.
        
        
      
     
         
         
         
         
         
         
         
         
         
         
         
         
         
         
         
         
         
             
             
             
             
             
             
             
             
             
             
             
             
             
             
             
             
            






