БИЛДИНГ БОКС предлага за продажба поземлен имот в гр. Нови Искър, кв. 'Гниляне' отлична възможност за изграждане на еднофамилна къща в спокоен и бързоразвиващ се район.
Районът е застроен предимно с еднофамилни къщи, като част от тях се обитават целогодишно.
Локацията предлага спокойствие, чист въздух и същевременно бърз достъп до центъра на гр. София приблизително 30 минути с автомобил.
Имотът е с площ от 435 кв.м., в регулация, с партида за електричество. Водоснабдяването към момента е чрез собствен водоизточник, като има възможност за присъединяване към централното водоснабдяване.
Достъпът до парцела е удобен и целогодишен по асфалтов път, като последните 50 метра са по чакълиран път.
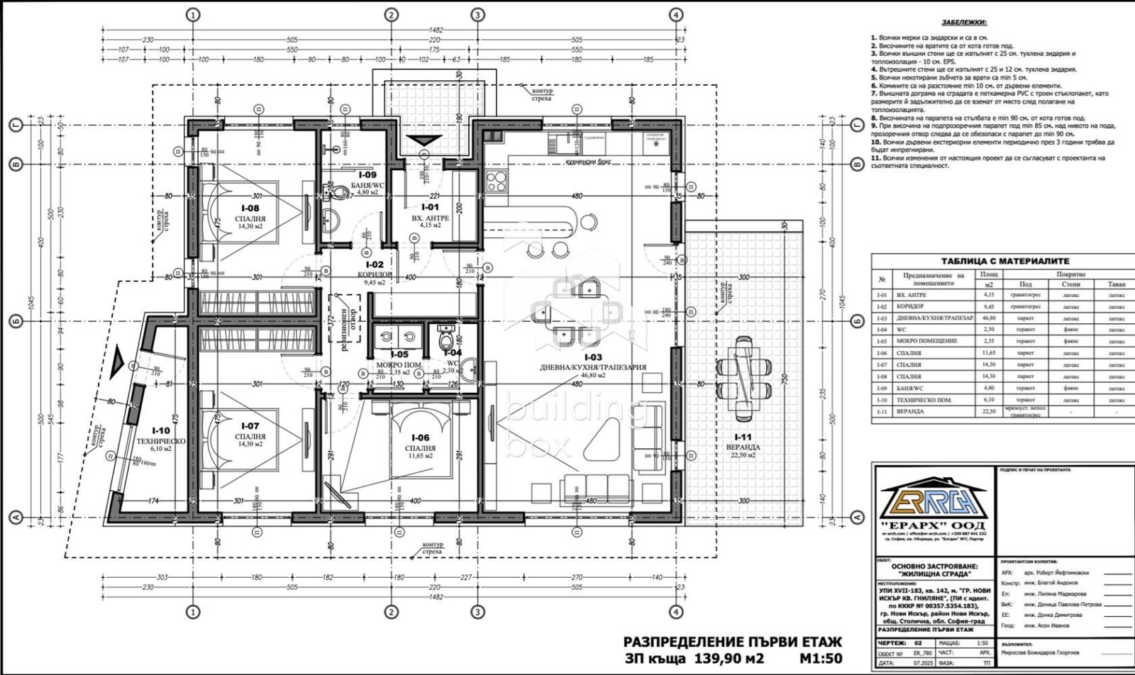
Издадена е ВИЗА ЗА ПРОЕКТИРАНЕ, както и готов проект за едноетажна къща с РЗП 139 кв.м., което дава възможност за бързо стартиране на строителството.
Съгласно ОУП на СО имотът попада в зона Жм със следните устройствени показатели:
- Максимална плътност на застрояване 40%;
- Максимален Кинт 1.3;
- Минимална озеленена площ 40%;
- Кота корниз до 10 м.
Имотът е подходящ, както за лично ползване и изграждане на дом, така и за инвестиция с отличен потенциал.
БИЛДИНГ БОКС предоставя безплатна консултация и съдействие при финансиране на избрания от Вас имот.
Оферта 30029



