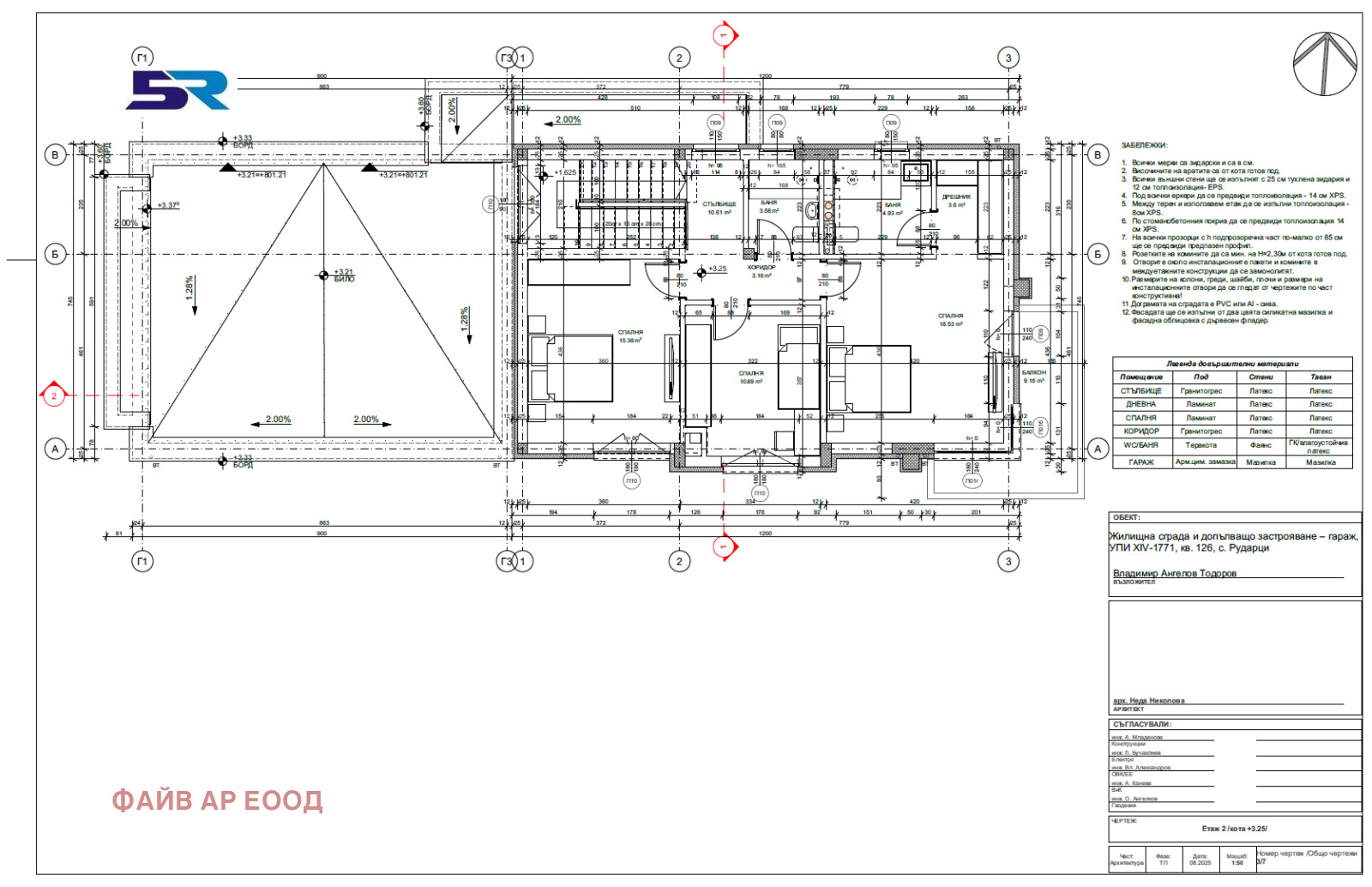
Предлагаме на Вашето внимание урегулиран поземлен имот в село Рударци заедно с одобрен проект за модерна 2-етажна масивна жилищна сграда и двоен гараж и влязло в сила строително разрешение (със заплатена такса за строеж към Община Перник) включени в цената. Имотът може да бъде застроен веднага. Присъединен е към мрежата на ВиК Перник (има изградено отклонение и шахта), със сключен договор за присъединяване към Електрохолд на 15 kW трифазен ток. Районът се захранва от чисто нов трафопост. Парцелът е с лице на асфалтиран пък (пътя към Делта Хил), ситуиран е в квартал с нови къщи, един от последните незастроени. Невероятна гледка към Витоша. Парцелът е над 1 декар, осигуряващ достатъчно място за обособяване на различни зони в двора, по желание на новия собственик (градина, басейн, барбекю и т.н.). Точните му координати в Google map са: 42.588685, 23.151812. Налично е и Street view, което обаче не е актуално. Агенцията извършва огледи в удобно за Вас време, включително в празнични и почивни дни, след предварителна уговорка.

