Парцел в кв. Карпузица, София, с площ 320 кв.м и отлична комуникативна локация.
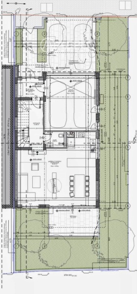
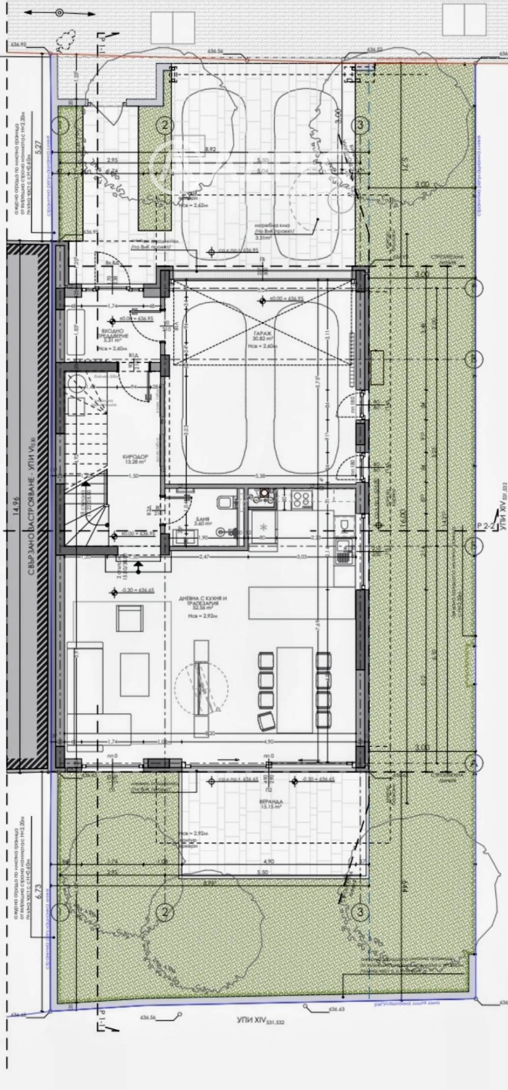
Имотът е равен и разполага с одобрен проект и всички изискуеми разрешителни за изграждане на еднофамилна двуетажна жилищна сграда с РЗП 418 кв.м. Сключен е договор със строителен надзор. Може да се стартира строителството веднага. Предвиден е двор с площ 200 кв.м.
Разпределение:
Първо ниво
Дневна с кухня и трапезария в общо пространство, санитарен възел, сервизно помещение, гараж за два автомобила и две паркоместа пред него.
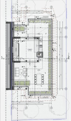
Второ ниво
Две спални със собствени бани и отделни дрешници тип будоар, два балкона и мокро помещение.
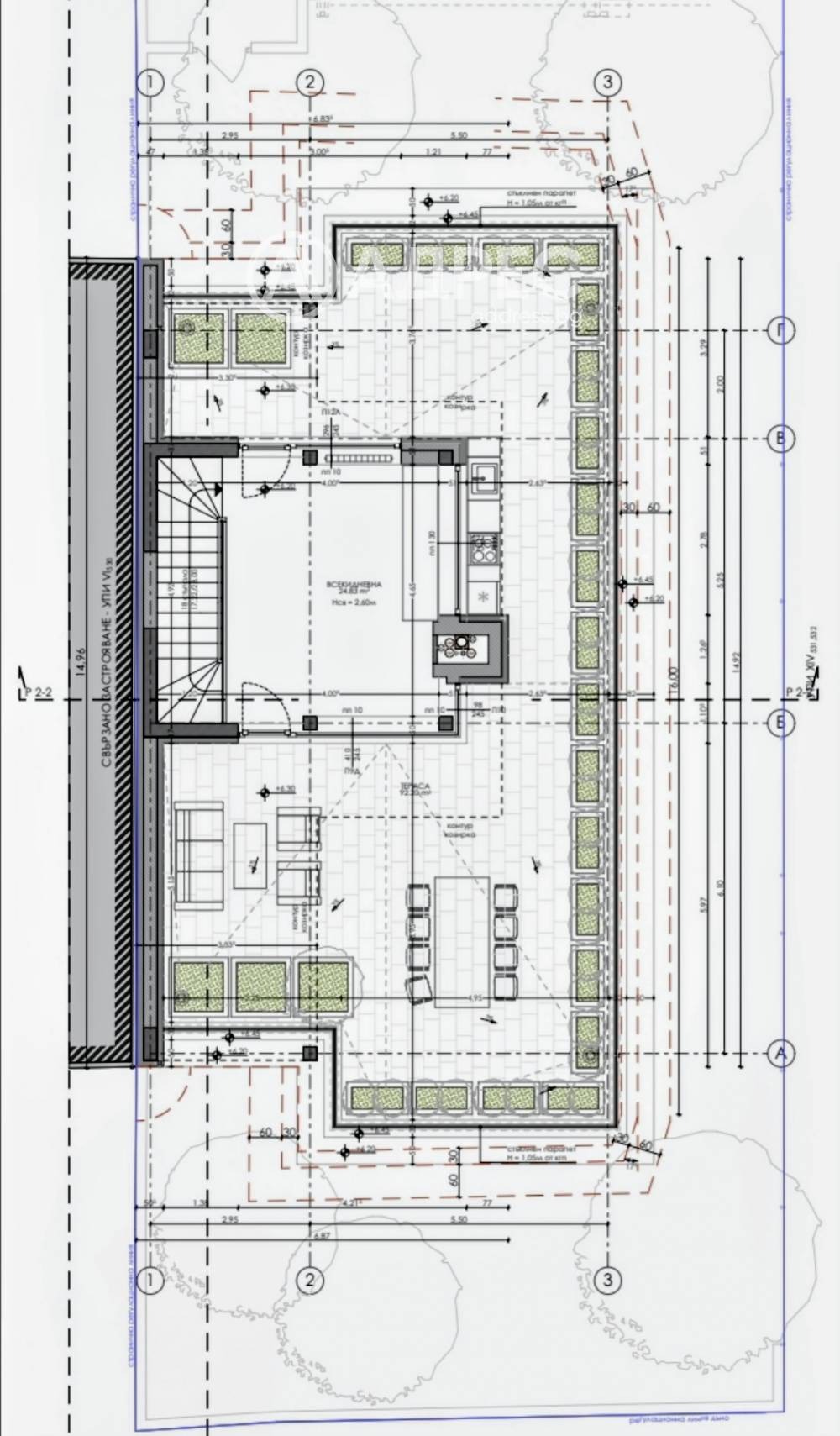
Покривно ниво
Покривна тераса с външна кухня, кът за релакс и изводи за джакузи. Покривът включва изводи за фотоволтаична система.
Имотът ти дава готова концепция и пълна административна готовност за изграждане на модерен семеен дом.
Карпузица е един от най-спокойните и зелени квартали в югозападна София. Районът съчетава тишина, чист въздух и нискоетажно застрояване с бърз достъп до основни булеварди, градски транспорт, училища и търговски обекти. Локацията е предпочитана от семейства заради баланса между уединение и удобна връзка с динамиката на града.
Модерна нова еднофамилна сграда с изчистена архитектурна визия, функционално разпределение и просторни помещения с отлична осветеност. Проектът съчетава комфорт, енергийна ефективност и съвременни технологични решения. Предвидени са просторна покривна тераса, възможност за фотоволтаична система и удобства, отговарящи на висок стандарт на обитаване. Дом, който съчетава стил, практичност и дългосрочна стойност.
Бърз достъп до транспорт на пешеходно разстояние до парцела има автобусни линии и трамвайни спирки, които свързват квартала с центъра и други райони на София. Това дава удобство както за всекидневни пътувания, така и за връзки с основни булеварди.
Училища и детски градини освен близкото 26 СУ 'Йордан Йовков', районът предлага допълнителни учебни и детски заведения на няколко минути пеша.
Медицински услуги в близост болница Райна Княгиня , детска клиника и медицински център са на кратко разстояние, което е важно за семейства и ежедневни нужди.
Търговски и битови удобства на разстояние пеша супермаркети, хранителни магазини, пекарни и дребни услуги са лесно достъпни без нужда от автомобил.
Близък парк и зелени площи в квартала има малки зелени зони и близост до по-големи паркови пространства, подходящи за разходки и спорт на открито.
Разв






