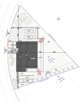
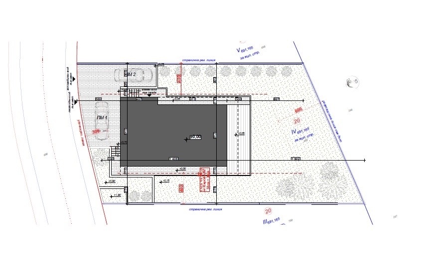
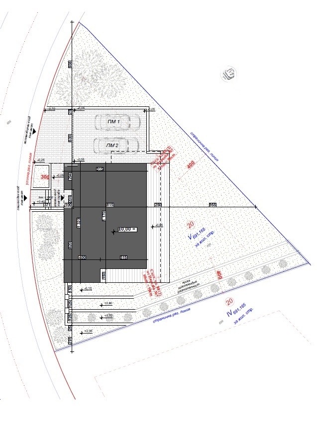
Парцел за бутиков проект до София с. Владая, м. Герена
Предлагаме атрактивен имот с отличен потенциал за развитие, разположен в с. Владая, м. Герена тиха и зелена зона с бърз достъп до София.
Параметри:
* Обща площ: 3 174 кв.м.
* 3 урегулирани поземлени имота
* Разработена концепция за 4 еднофамилни къщи на единия парцел, и други две на другите два парцела
Предимства:
* Спокойствие, чист въздух и природа
* Бърз достъп до града
* Подходящ за малък бутиков комплекс
Проектната идея включва модерна архитектура, френски прозорци, просторни тераси и озеленени дворове продукт с висок пазарен потенциал.
Подходящ за:
инвеститор, строител или частен купувач с визия за висок клас жилищно строителство.
⸻
За детайли и оглед свържете се с нас







