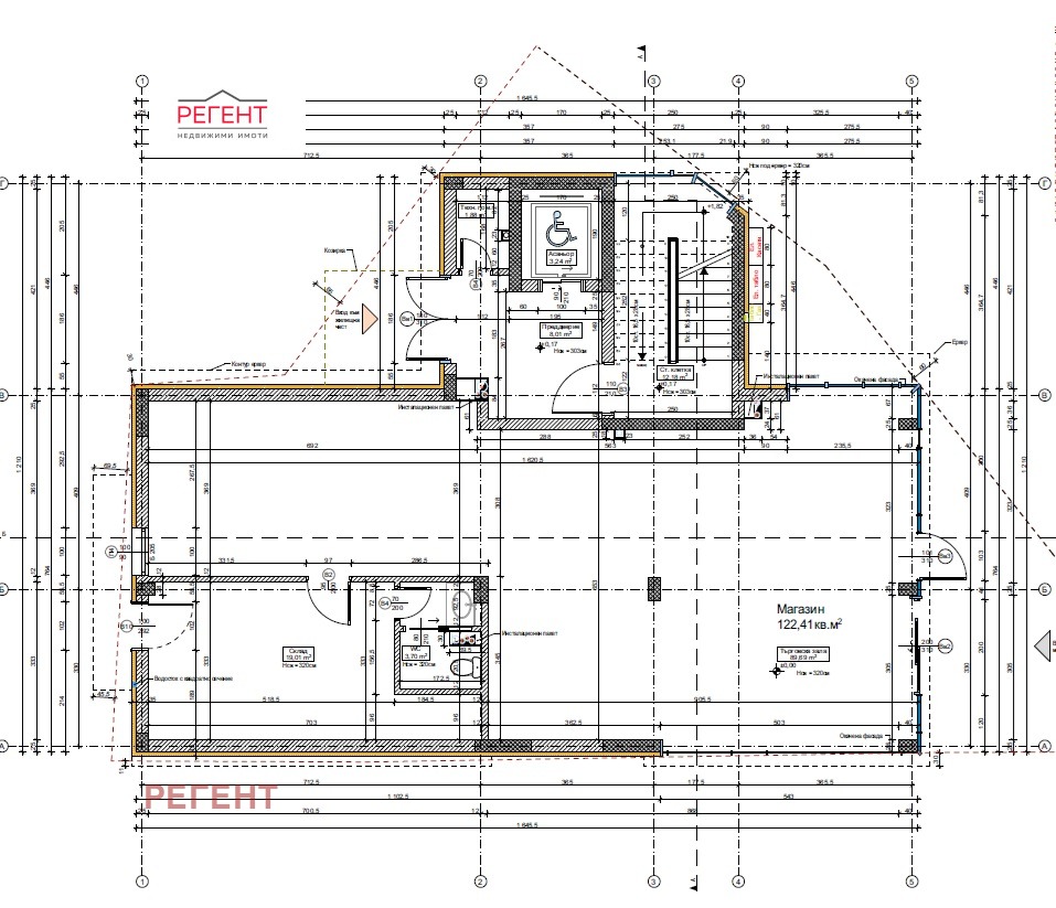
Предлагаме за продажба УПИ XXV от кв. 51 по регулационния план на гр. Севлиево, ПИ 65927.501.5425 по КК и КР на Община Севлиево, обл. Габрово, заедно с проект за МНОГОФАМИЛНА ЖИЛИЩНА СГРАДА . Площ на имота - 420кв.м2:
ГРАДОУСТРОЙСТВЕНИ ПОКАЗАТЕЛИ:
Площ на имота - 420кв.м2
Пз = 36,82%
Оз = 30%
Кинт - 1,99
ЗП /по смисъла на 5, т.15 от ДР на ЗУТ/ = 154,66 кв.м2
РЗП /по смисъла 5, т.18 от ДР на ЗУТ/ = 838,14 кв.м2
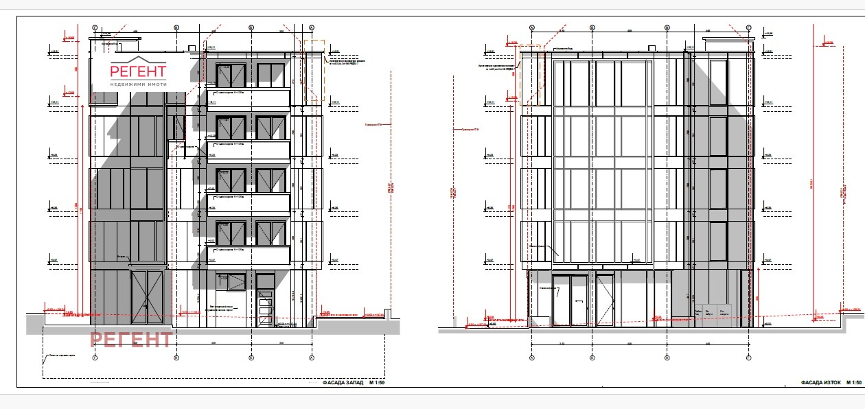
ЗП ет.-1 к. - 2,80 /гараж/ = 314,79 м2
ЗП ет. 1 к. 0.00 = 154,66 м2
ЗП ет. 2 к. + 3,47 = 171,59 м2
ЗП ет. 3 к. + 6,35 = 171,59 м2
ЗП ет. 4 к. + 9,23 = 171,59м2
ЗП ет. 5 к. + 12,11 = 168.71 м2
Обща застроена площ- 1152,93 кв.м2
ОБЩО ЖИЛИЩА: 4 бр.
- Апартаменти:4 бр.
- Магазин: 1 бр.
Паркиране
Осигурени са 4 гаража, за общо 7 броя МПС
За повече информация и Обяснителна записка с информация за обекта се обърнете към брокера на обявата Красен Дойков на тел. 0887602324







