ЕРА Царевец предлага ексклузивно за продажба урегулиран поземлен имот, разположен в кв. Пролет в град Горна Оряховица тих и предпочитан район, подходящ за изграждане на еднофамилна къща и спокойна семейна среда. Локацията съчетава удобството на градската инфраструктура с уюта на по-спокойна жилищна зона.
Парцелът е с площ от 745 кв.м. и е в регулация, което предоставя отлични възможности за изграждане на нов дом. В имота има съществуваща стара постройка къща, с налични комуникации ток, вода и изградена канализация, което значително улеснява бъдещото строителство.
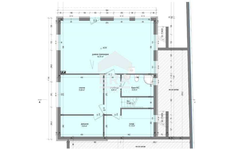
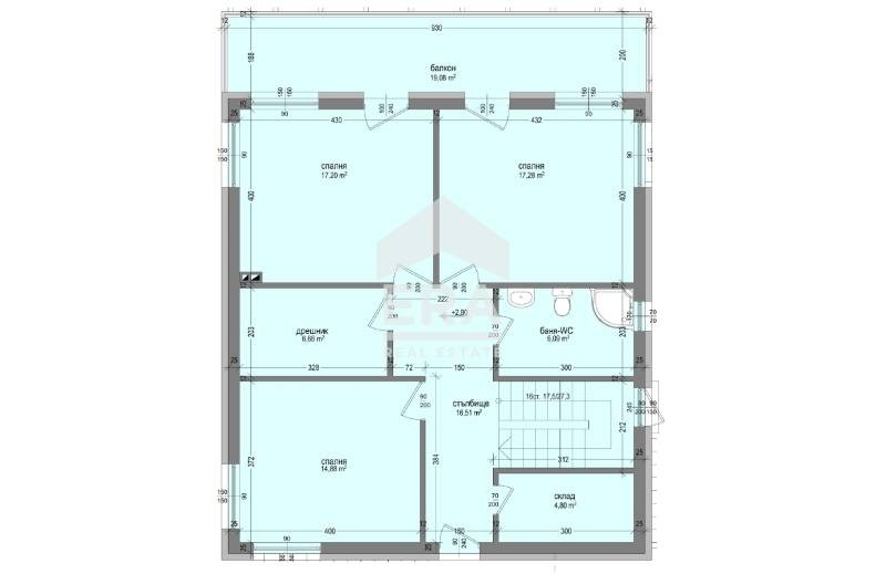
Едно от големите предимства на този имот е, че се предлага с готов архитектурен проект за двуетажна къща с разгъната застроена площ от 228 кв.м. Това дава възможност на бъдещите собственици значително да спестят време и средства в процеса на проектиране и подготовка за строителство, като същевременно разполагат с ясна концепция за бъдещия си дом.
Имотът е отлична възможност както за хора, които планират да изградят собствен дом в спокойна градска среда, така и за инвеститори, търсещи перспективен парцел с готов проект.
За повече информация и организиране на оглед се свържете с екипа на ЕРА Царевец!
тел.: 0883 700 886
ЕРА е регистриран към БНБ кредитен посредник и като такъв официално извършва безплатно кредитно посредничество за всички видове кредити към всички банки!
Оферта 6501538





