В регулация, с Виза!
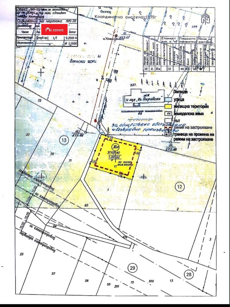
Продава се урегулиран поземлен имот (УПИ) в с. Опицвет, с отлична локация и лице на улица.
Парцелът попада в зона за ниско жилищно застрояване, с показатели:
Плътност на застрояване: 40%
КИНТ: 1.0
Озеленяване: 60%
Имотът е с правилна форма и удобен достъп по асфалтов път, разположен в развиващ се район с ново строителство и постоянни съседи.
Подходящ е за изграждане на еднофамилна къща или малка жилищна сграда, като предлага спокойствие, чист въздух и бърз достъп до София.
? Локацията съчетава тишина и природа с удобна комуникация до града.
Имотът е отлична инвестиция както за лично ползване, така и с цел бъдещо развитие.
За повече подробности и огледи: 0883 278 000 ?

