LUXIMMO FINEST ESTATES: www.luximmo.bg
Представяме за продажба урегулиран поземлен имот във в.з. 'Малинова долина', непосредствено зад Garitage Park един от най-предпочитаните райони в южната част на София.
Парцелът се продава с издадено разрешение за строеж и готов архитектурен проект за модерна еднофамилна къща.
Това позволява незабавно започване на строителство.
Разрешението за строеж е изключително ценен актив в района. То спестява приблизително година и половина административни процедури, проектиране и съгласуване.
Парцелът е изчистен, равен и без денивелация, което улеснява строителството и оптималното използване на проекта.
Осигурен е асфалтов достъп и възможност за газификация.
Параметри на имота:
Площ на парцела: 550 кв.м
Проект за къща с РЗП 321 кв.м:
Стъпка: 123 кв.м
Три етажа ( на последния - панорамно rooftop студио)
3 спални + гардеробна
3 бани с WC + самостоятелна WC
кабинет / офис
просторна дневна с кухня и трапезария
гараж за 1 автомобил + външно паркомясто
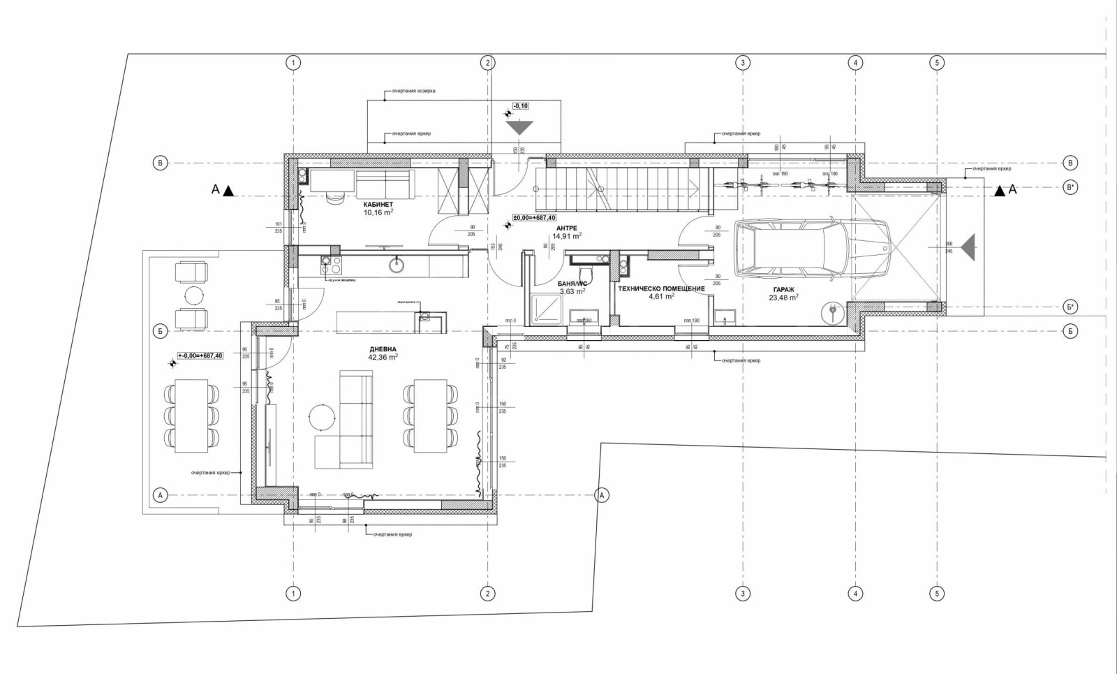
Разпределение
Първи етаж просторна дневна зона с кухня и трапезария и директен излаз към двора. На това ниво са разположени още кабинет / офис, баня с тоалетна, техническо помещение и гараж за един автомобил.
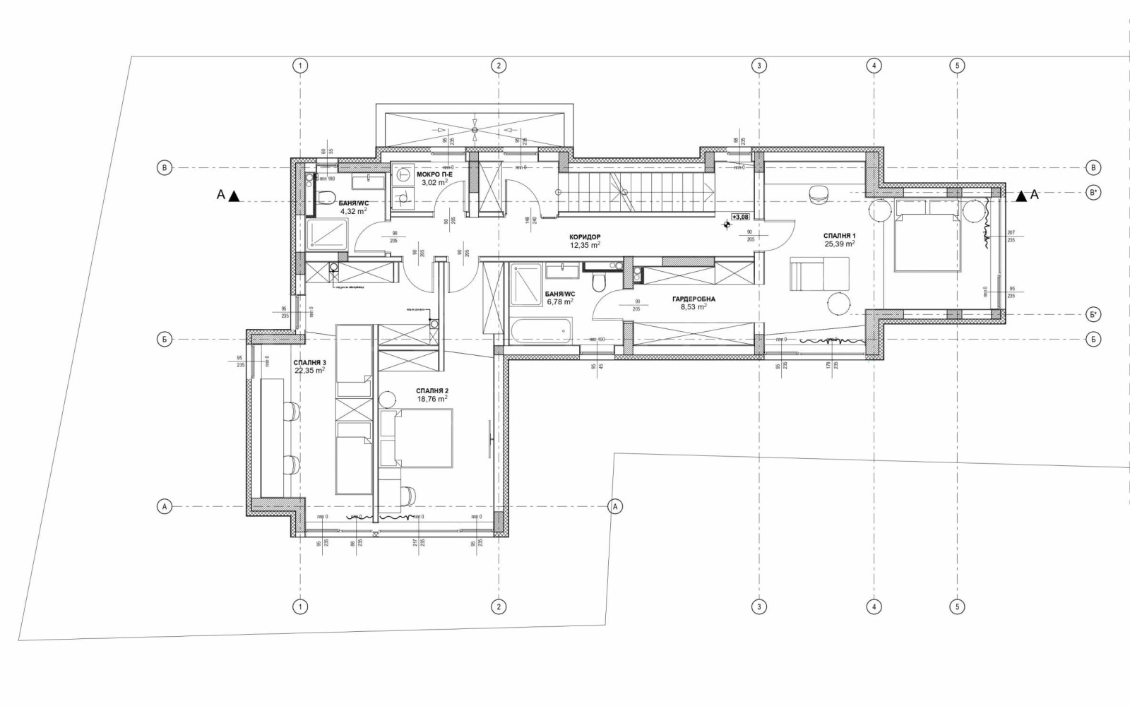
Втори етаж жилищна зона с три много просторни спални (18.76м², 22.35м², 25.39м²), гардеробна, две бани и перално помещение. Разпределението е функционално и осигурява комфорт и уединение за семейството.
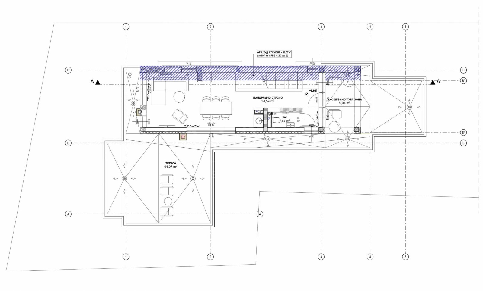
Трети етаж панорамно студио с просторни тераси, подходящо за зона за отдих, хоби пространство или домашен офис, с открити гледки към града и Витоша.
Локация
Имотът е разположен в тиха зона с отлична достъпност:
Garitage Park около 4 минути
Business Park Mladost 5 минути
Sofia Ring Mall 8 минути
Парк Камбаните 3 минути
Районът предлага спокойна среда, панорамни гледки и бърз достъп до основни бизнес и търговски зони на София.
Офертната цена включва парцела, архитектурния проект и издаденото ...
За повече информация свържете се с нас и цитирайте референтния номер на имота. Моля, кажете, че сте видeли обявата в този сайт.
Референтен номер: SOF-138595
Тел: 0886 070 335, 02 404 89 90
Отговорен брокер:Лиа Тонева







