ПАРЦЕЛ 2590 КВ.М. / М-Т РАКИТНИКА / НА ГЛАВЕН ПЪТ / МОРСКА ПАНОРАМА / МЕТРИ ОТ ПЛАЖА
0879 590 800 / ЛЮБЕН ЛЮБЕНОВ
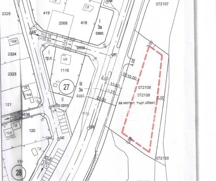
Предлагаме за продажба урегулиран поземлен имот с площ от 2590 кв.м., разположен в м-т Ракитника, на главен път и само на няколко минути пеша от Плаж Черноморец. Имотът се намира на 15 минути от центъра на Варна, с бърз и удобен достъп по асфалтов път.
📐 Показатели за застрояване:
Плътност на застрояване (ПЗ) 20%
КИНТ 0,4
Кота корниз до 10 м
🌊 Предимства на имота:
✔️ Нескриваема морска панорама
✔️ Лице на главен път отлична видимост и достъп
✔️ Одобрен ПУП
✔️ Спокойна и озеленена среда
✔️ На пешеходно разстояние от плаж и курортна зона
✔️ Район с нарастващ инвестиционен интерес и развиваща се инфраструктура
Имотът е изключително подходящ за изграждане на бутиков хотел, ваканционен комплекс от къщи, търговски обект или жилищен проект.
Отлична възможност за инвестиция в морски район с потенциал и стратегическа локация.







