LUXIMMO FINEST ESTATES: www.luximmo.bg
Представяме за продажба парцел в регулация с изключителна локация в топ центъра на гр. Банкя - отлична възможност за изграждане на луксозна фамилна къща в престижен курортен район с минерална вода, чист въздух и бърз достъп до София.
Имотът е с площ 512 кв.м, разположен е на асфалтова улица с широко лице от 26 метра, непосредствено срещу парк разделени единствено от улицата. Парцелът се намира в старата, най-зелена и предпочитана част на Банкя.
Парцелът попада в зона ЖМ2 със следните параметри на застрояване:
плътност 30%;
КИНТ 1;
кота корниз до 10 м.
Всички комуникации са налични и изградени ток, вода, централна канализация и газ.
Имотът се продава с издадено разрешение за строеж за еднофамилна жилищна сграда.
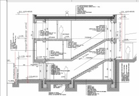
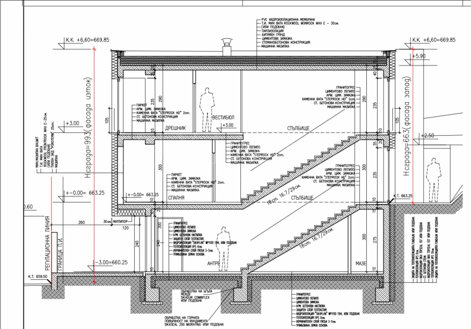
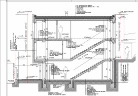
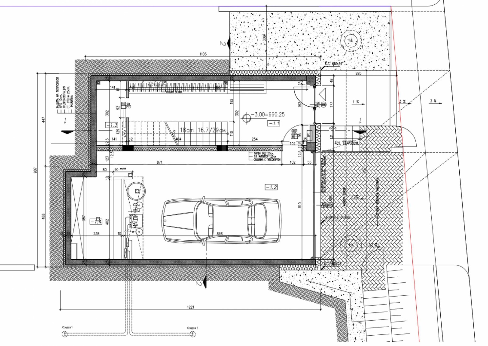
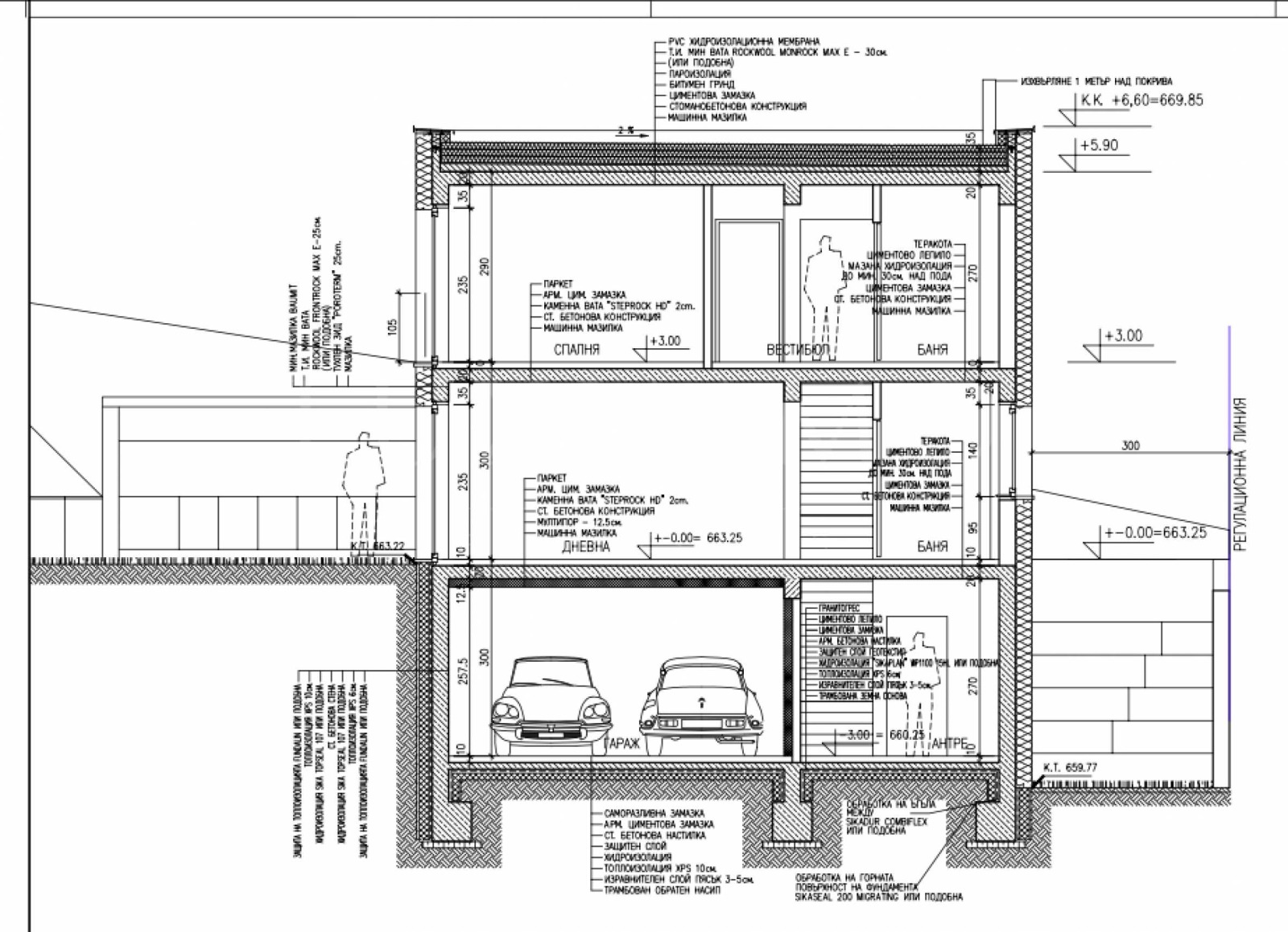
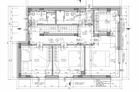
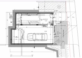
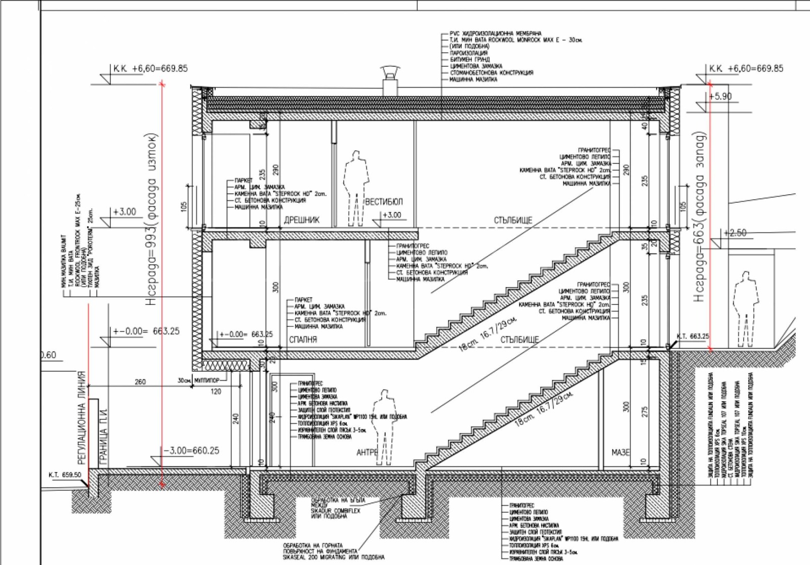
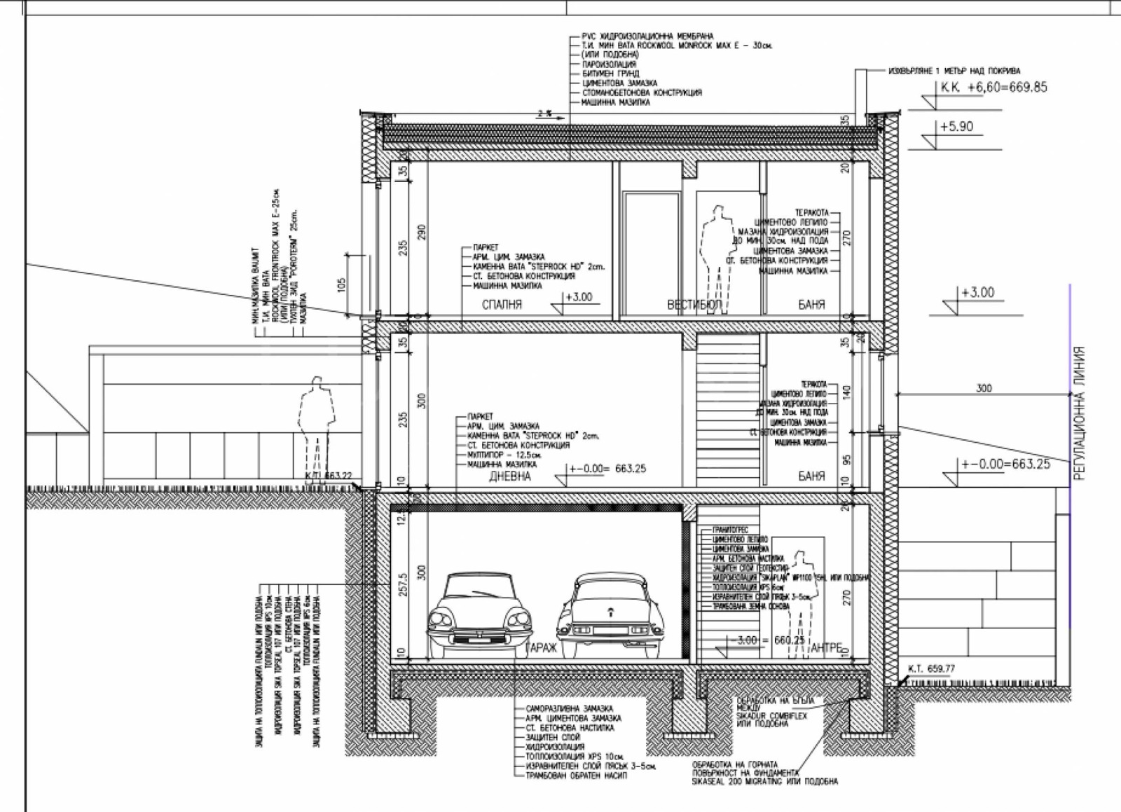
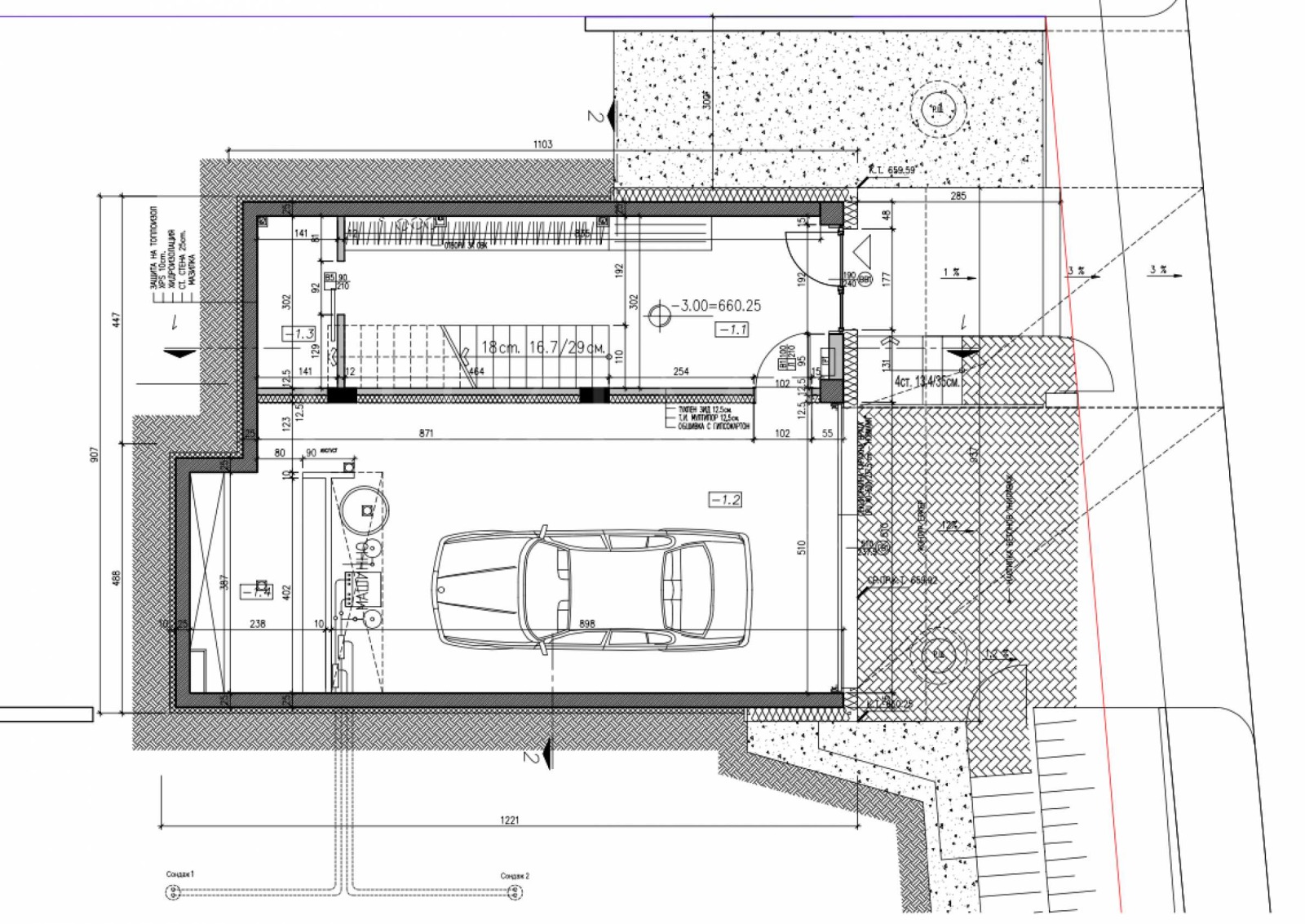
Сутеренен етаж:
двоен гараж;
котелно помещение;
склад;
стълбище с топла връзка към жилищната част;
допълнително външно паркомясто в рамките на двора.
Първи етаж:
входно антре;
просторна дневна с кухненски бокс и трапезария;
директен излаз към двора и връзка с лятна кухня / барбекю зона;
спалня;
баня с тоалетна;
дрешник при входа на етажа.
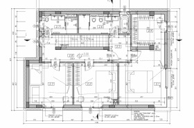
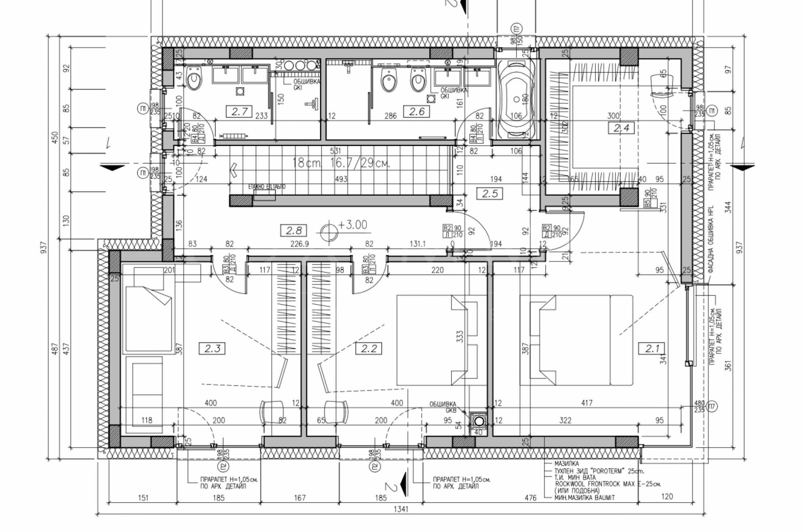
Втори етаж:
три самостоятелни спални, една от които родителска;
родителската спалня е с кабинет и собствена баня с тоалетна;
втора баня с тоалетна, обслужваща останалите две спални.
Очакваме Вашето запитване
Ако желаете да организирате оглед на имот, който Ви интересува, или да посетите някой от нашите офиси, моля свържете се с нас. За да уговорите ден и час за среща или оглед, можете да се обадите на посочения в обявата телефон или да изпратите запитване чрез електронната поща. Нашият консултант ще Ви съдейства с всички необходими подробности и ще уговори удобно за Вас време.
Търсите подходящия за Вас имот?
Не се колебайте да се свържете с нас и да ни разкажете за Вашите нужди и предпочитания. Нашият екип ще проведе задълбочено проучване на пазара, за да Ви предложи имоти, които точно отговарят на ...
За повече информация свържете се с нас и цитирайте референтния номер на имота. Моля, кажете, че сте видeли обявата в този сайт.
Референтен номер: STO-137441
Тел: 0884 657 885, 02 423 19 62
Отговорен брокер:Яна Янчева







