В Регулация ! Готов Проект ! 539м2 площ ! ВЕЧЕ С РАЗРЕШЕНИЕ ЗА СТРОЕЖ ! ВиК , Газ , Ток , Интернет ! До Центъра на града ! Гледка към Витоша !
Референтен код 82638 в www.novdom1.bg!
Консултант недвижими имоти: Мирослав Стоянов, тел. 0879900430!
Крайна цена с включено ДДС!
Парцелът представлява:
Голям равен и узаконен парцел с площ 539м2. Има одобрен проект за двуетажна къща с 270м2 застроена площ. Към нея има и голям двоен гараж.
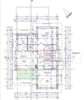
Първият етаж е с разпределение - дневна с кухненски бокс около 40м2; спалня около 15.6м2; мазе около 6.7м2; баня около 4.5м2 и антре 14.6м2.
Вторият етаж е с разпределение - три спални около 19.6м2 , 17.7м2 , 15.4м2; три бани около 7м2 , 4.5м2 , 4.8м2; дрешник около 3.4м2; тераса около 8.9м2; мокро помещение около 2.8м2 и антре около 4.8м2.
Продажната му цена е 145 000 с ДДС! Без значение от начина на плащане!
Купувате и можете веднага да почнете със строежа на мечтаната Ви къща!
Забележка: Приложените снимки, схеми и визуализации са с цел добиване на максимална представа за имота.
Всички възможни екстри за един парцел:
- Разрешение за строеж
- Одобрен проект
- Газ
- Ток
- ВиК
- Интернет
Отлична локация:
- На 10 мин пеша от центъра
- На 10 мин пеша от супермаркет
- На комуникативно, но и тихо и спокойно място
- На 3 мин от Ломско Шосе
- На 15 мин от София
Нов Дом 1 - винаги най-доброто на пазара!







