БИЛДИНГ БОКС има удоволствието да Ви представи парцел в гр. Варна, кв. Аспарухово.
Предимства:
- ПЛОЩ: Парцелът е с площ от 233 кв. м., с лека денивелация;
- ЛОКАЦИЯ: Намира се в югоизточната част на квартала.
- РАЗМЕРИ: Лице 27 м. към пътя;
- ОСОБЕНОСТИ: Вид територия Урбанизирана, разположен на тихо и спокойно място, откъснато от градския шум. УПИ с влязъл в сила ПУП.
ПАРАМЕТРИ НА ЗАСТРОЯВАНЕ: Кинт: 1.5, средно застрояване от 10-15 м., плътност 50%;
- РАЙОН: В района се намират целогодишно обитавани къщи, хранителни магазини. Изградена инфраструктура. С комуникации в парцела ток 25 kW, вода и канал, подходящ за жилищно строителство. В съседство има новопостроени съвременни къщи и жилищни сгради.
Имота е с включен готов проект за модерна триетажна къща; Намира се на 50 м от спирка, с прекрасна гледка към море и гора. Лесен и удобен достъп до имота.
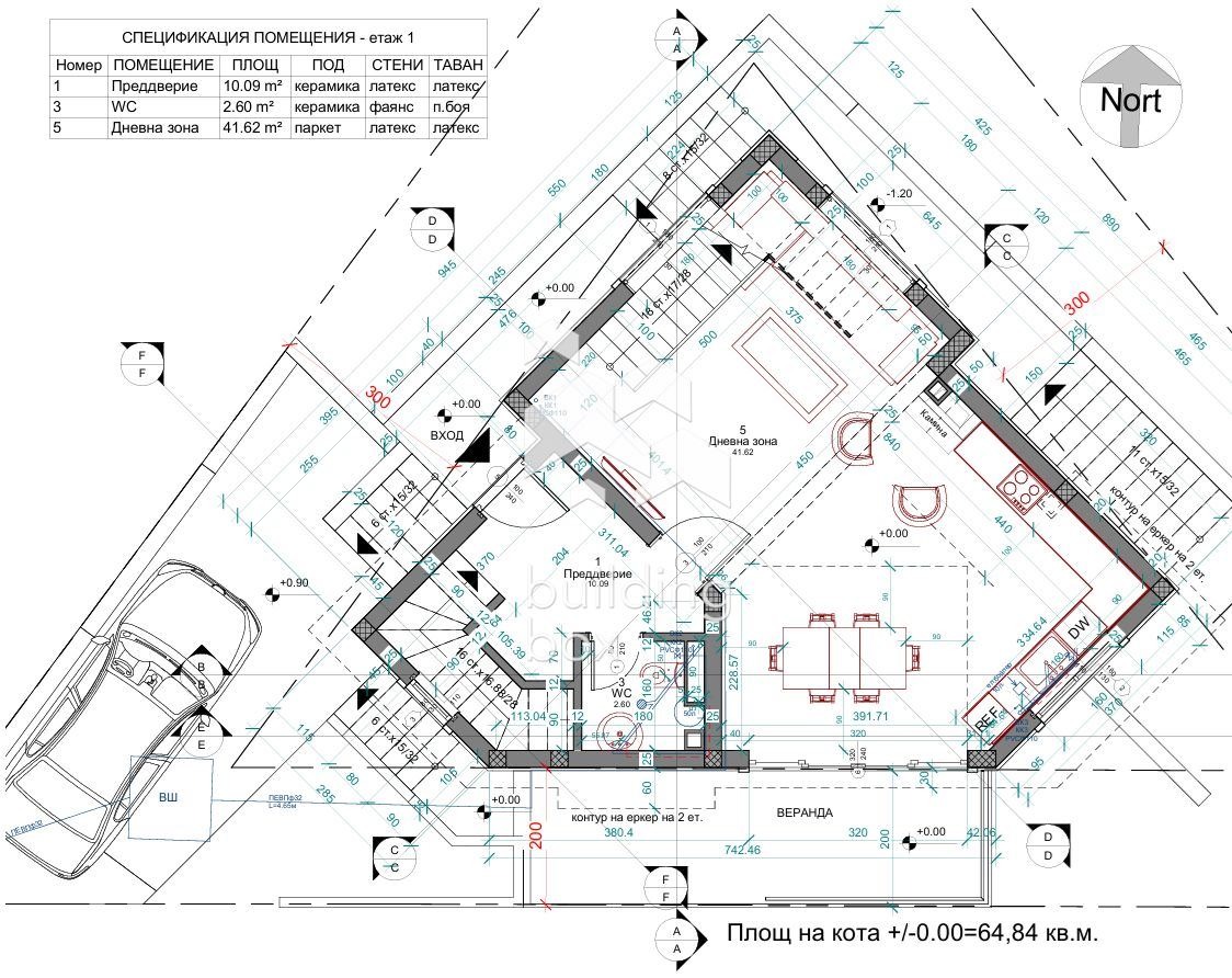
Проектът за къщата включва: Първи (сутеренен) етаж - механа, килер. Втори етаж-антре, дневна с трапезария и кухня (42м2), тоалетна. Трети етаж-три спални (по 15 кв. м.), баня с тоалетна. Спестявате време и средства с вече изготвен проект. Възможност за бързо започване на строителство на семейно жилище или къща за гости.
- ДОСТЪП: Асфалт и чакълен път.
Билдинг Бокс предоставя безплатна консултация и съдействие при финансиране на избрания от Вас имот.
оферта 28673







