Продаваме урегулиран поземлен имот (УПИ) с площ 671 кв.м., разположен в гр. Сливница със започнато строителство на еднофамилна двуетажна къща. Излети са основи и е изградена подпорна стена. Новият собственик може да избере да довърши започнатия проект или да реализира напълно нова концепция за жилище.
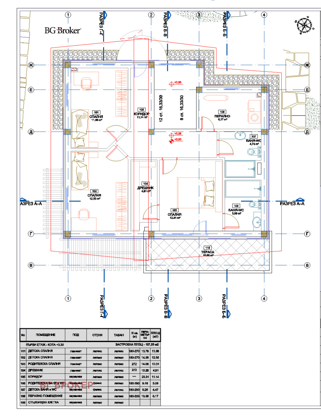
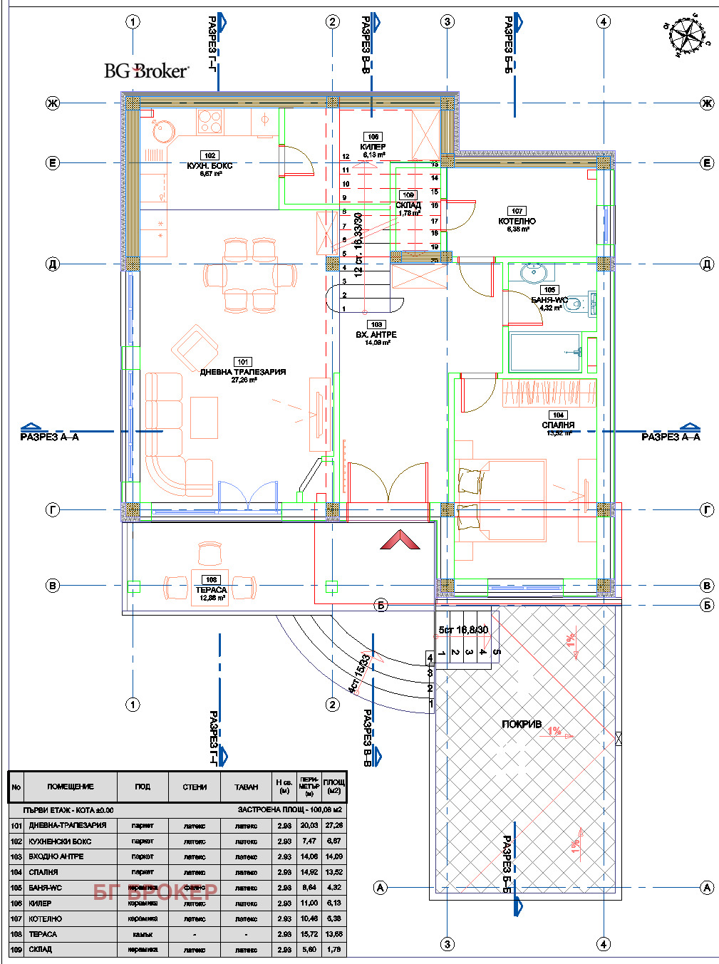
Къщата е с разгъната застроена площ (РЗП) 233 кв.м. и има следното разпределение:
- Етаж 1: дневна с трапезария и кухненски бокс, тераса/веранда, спалня/кабинет, баня с
тоалетна, килер и котелно
- Етаж 2: три спални, две бани с тоалетни /една към спалня/, склад/перално и две тераси.
Проекта на къщата е много красив, с разчупена архитектура. Парцелът е на асфалтирана улица, граничещ с къщи в които живеят целогодишно. Подходящ за постоянно живеене или инвестиция.
Локация: гр. Сливница удобно разположение с бърз достъп до София.
Оферта 11511
Възможна покупка с кредит. Съдействие за жилищно кредитиране.
За повече информация:
тел. 0890 311 119
e-mail: [email protected]
www.bgbroker.bg
РАБОТИМ САМО С КОРЕКТНИ КОЛЕГИ И АГЕНЦИИ!
Огледи по всяко време с предварителна уговорка. Възможни са и през почивни дни!







