БУЛ ИМОТ ПРОДАВА !!!
Парцел за продажба Варна, м-т Бриз 🌿
🌅 Морска панорама от кота нула
🛣️ Лесен достъп по асфалтов/твърд път в района, целогодишно обитаване наоколо
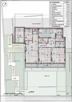
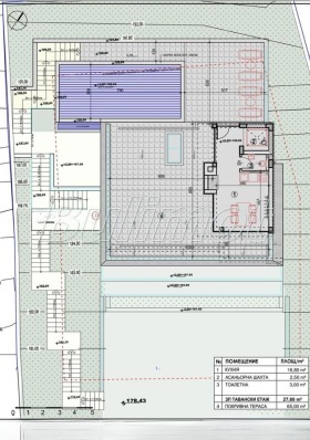
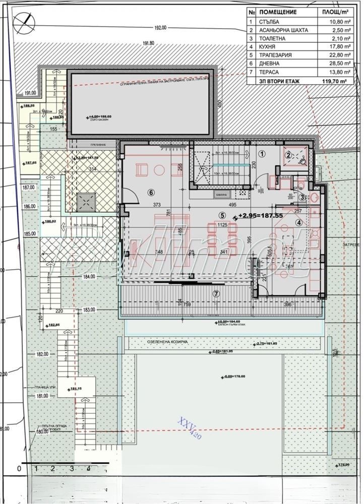
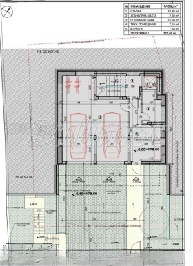
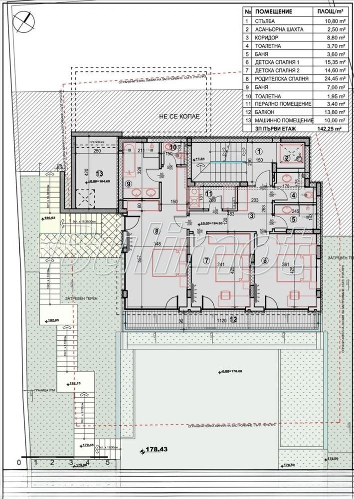
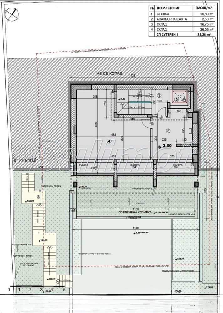
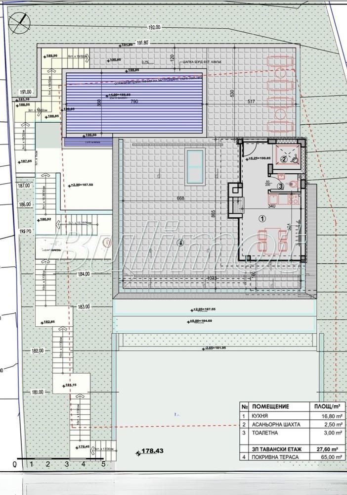
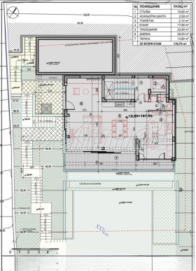
🏡 С разрешително за строеж на еднофамилна жилищна сграда рпз 589м2 на 5 етажа с лифт, басейн до 100м3, нескриваема панорама от кота 0. Много лесен достъп,ЕЛ,Новоизграден частен водопровод и канализация до границата на имота.
за огледи и информация: Ивелина Йорданова,реф. 15837







