Агенция за недвижими имоти BAS Properties предлага за продажба урегулиран поземлен имот, подходящ за жилищно строителство, разположен в един от най-спокойните и зелени райони на гр. Банкя м. Бански рид.
Основни параметри:
- Площ: 1301 кв.м
- Статут: В регулация (УПИ)
- Виза за проектиране: Да
- Разрешение за строеж: В процес на изваждане
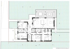
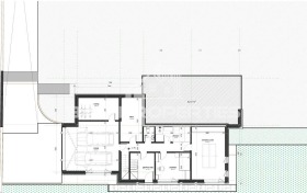
- Проект: Входиран проект за къща на два етажа с РЗП 400 кв.м
- Сондаж: Извършен, с измерен дебит, пълна документация и регистрация в Басейнова дирекция
Допълнителна информация:
- Зона: ЖМ3 за жилищно ниско застрояване
- Лице към Алея на Здравето: 40 м
- Терен: Правоъгълен с лека денивелация на северозапад
- Локация: Граничи с Алеята на Здравето, район с балнеоложко предназначение
Предимства:
- Отлична инвестиционна възможност в развиващ се район
- Подходящ за семейна къща, ваканционен имот или бутикова резиденция
- Живописна природа, тишина и чист въздух
- Бърз достъп до гр. София
Имот с изключителен потенциал, разположен в спокойна и здравословна среда, само на минути от столицата.
Свържете се с нас за повече информация и оглед.
Агенцията предлага безплатно съдействие при жилищно кредитиране.
Виж всички обяви в basproperties22.bazar.bg или тук
        
       
         
         
         
         
         
         
         
         
         
         
         
             
             
             
             
             
             
             
             
             
             
            





