🏡 CORRECT BROKERS Ви представя ъглов парцел с проект и разрешение за строеж на триетажна къща, разположен в една от най-живописните и спокойни местности Манастирски рид! 🌲✨
📍 Локация:
Само 800 м от главния път за Аладжа манастир, след известния гумен завой , по ул. Сините камъни идеална комбинация от тишина, природа и удобен достъп до града 🚗
📐 Характеристики на имота:
🔹 Площ на парцела: 584 кв.м
🔹 РЗП: 221,5 кв.м
🔹 Ъглов парцел с отлична ориентация и достъп
🔹 Партиди за ток и вода готов за започване на строителство ⚡💧
🔹 Разрешение за строеж на триетажна къща без чакане, без излишни процедури 🏗️
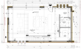
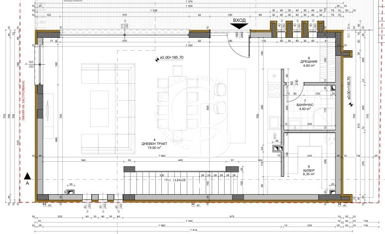
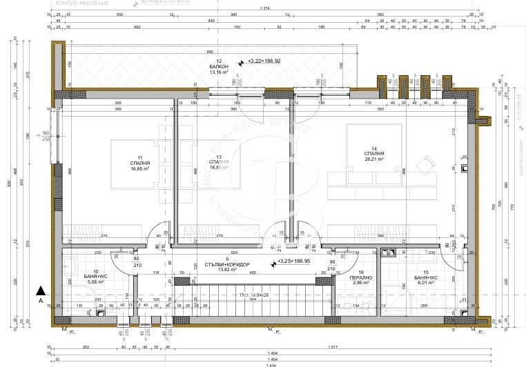
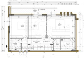
🏠 Архитектурно разпределение:
Първи етаж:
🚘 Просторен двоен гараж 49 кв.м
📦 Складово помещение 47 кв.м
Втори етаж:
🛋️ Дневен тракт 74 кв.м с панорамни прозорци и достъп до
🌿 Веранда 43 кв.м, идеална за сутрешно кафе сред зеленина ☀️
🧺 Килер 6 кв.м
👕 Дрешник 4 кв.м
🚻 Санитарно помещение
Трети етаж:
🛏️ Три спални 16 кв.м, 16 кв.м и 26 кв.м
🛁 Две санитарни помещения
🧼 Перално помещение
🌅 Тераса с гледка към гората Вашият личен кът за релакс
🌄 Предимства:
🌲 Заобиколен от природен парк тишина, чист въздух и естествена прохлада
💨 Изключително приятен микроклимат свежест дори в летните дни
🛣️ Перфектен достъп широка улица и бърза връзка с града
🏠 Готов проект и разрешение за строеж спестено време и усилия
💶 Цена: 116 000
💡 Отлична инвестиция за семеен дом, ваканционна къща или бутиков проект
📞 За повече информация и оглед:
📲 0896 662 496
✨ Не просто парцел това е възможност да създадете своя дом в хармония с природата, на минути от града и морето! 🌊🌿



