ЕРА Царевец предлага за продажба парцел с готов проект за едноетажна къща в гр. Лясковец, област Велико Търново. Имотът е с площ от 458 кв.м., в регулация, с ток и вода до границата, което гарантира лесно и бързо присъединяване на бъдещия строеж. Намира се на отлична локация, на асфалтиран път, с удобен достъп и спокойна жилищна среда.
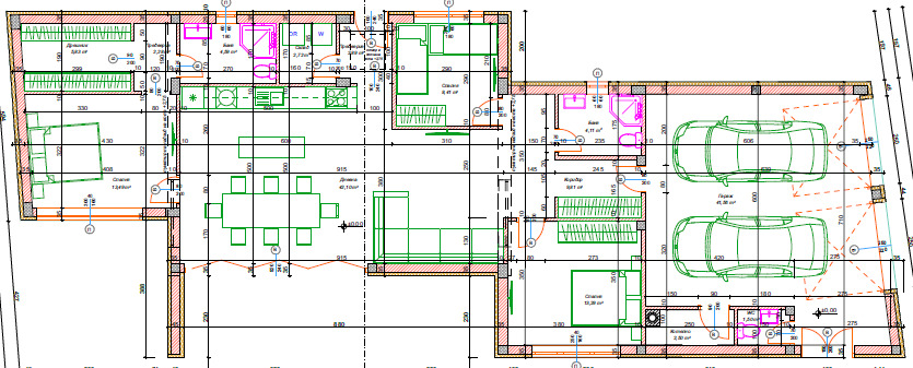
Голямо предимство на имота е, че се предлага с готов архитектурен проект за едноетажна къща с обща застроена площ от 183 кв.м. Проектът включва функционално и модерно разпределение, което осигурява комфорт и удобство за едно домакинство. Къщата е проектирана с предверие, складово помещение, просторна дневна с кухненски бокс и трапезария, родителска спалня със собствена баня, тоалетна и дрешник, още две спални, втора баня с тоалетна, както и коридор с топла връзка към двоен гараж с тоалетна и изградено котелно помещение.
Имотът е подходящ както за инвестиция, така и за жилищни нужди, като предлага отлична възможност за изграждане на съвременен дом в близост до град Велико Търново. Парцелът съчетава удобствата на градската инфраструктура с уюта и спокойствието на малкия град, което го прави идеален избор за семейства, които търсят комфорт, пространство и качество на живот.
Свържете се с нас за допълнителна информация!
ЕРА Царевец
телефон: 0883 700 886
ЕРА е регистриран към БНБ кредитен посредник и като такъв официално извършва безплатно кредитно посредничество за всички видове кредити към всички банки!
Оферта 6501345



